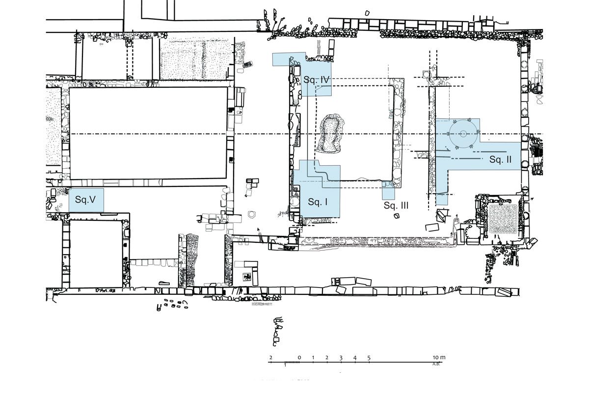
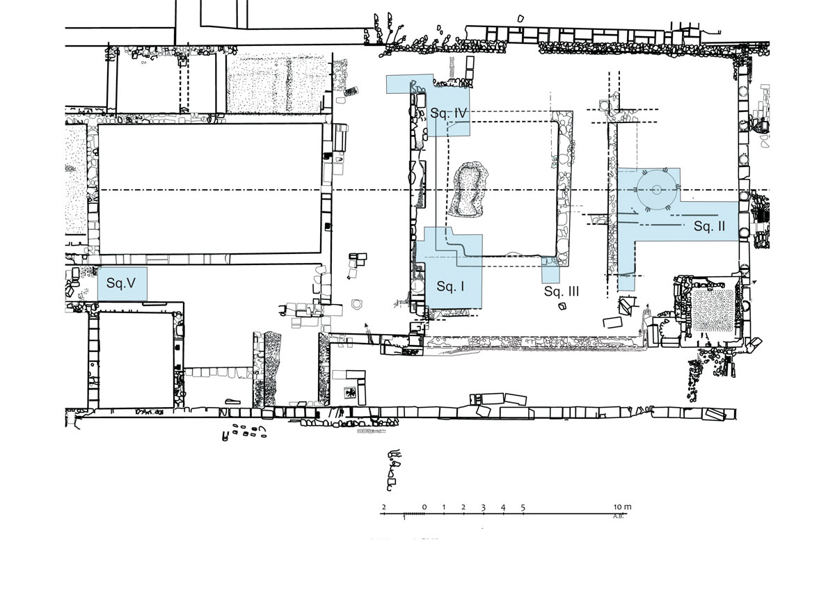
Τη λήξη των ανασκαφών του 2016 στην Κάτω Πάφο-Μαλούτενα ανακοίνωσε το Τμήμα Αρχαιοτήτων Κύπρου. Οι ανασκαφές διεξήχθησαν από την Πολωνική Αρχαιολογική Αποστολή, υπό τη διεύθυνση του δρος H. Meyza (Πανεπιστήμιο Βαρσοβίας). Τη φετινή περίοδο, οι έρευνες περιορίστηκαν στην περιοχή της κυρίως εσωτερικής αυλής της Ελληνιστικής Οικίας και στο διάδρομο μεταξύ της «Ρωμαϊκής Οικίας» και της «Ελληνιστικής Οικίας» αρ. 29. Στην πρώτη περιοχή επεκτάθηκαν προς τα ανατολικά οι ανασκαφικές τομές που είχαν διανοιχθεί το 2014. Οι τομές έφτασαν μέχρι την ανατολική στοά της αυλής και στη νοτιοδυτική γωνία του χώρου στον οποίο είχαν διανοιχθεί τομές το 2013 και 2014 και οι οποίες έφτασαν στο φυσικό βράχο.

Στην ανατολική επέκταση των ερευνών βρέθηκε μια κυκλική λεκάνη διαμέτρου περίπου 2 μ. η οποία περιείχε τμήματα από το άνω μέρος αμφορέων του τύπου Lamboglia 2. Τα τμήματα σώζουν τις λαβές και το χείλος των αμφορέων και βρίσκονται περίπου 19 εκ. πάνω από το δάπεδο της λεκάνης. Πιθανόν γέμιζαν ή και άδειαζαν τη λεκάνη από το νερό. Τρία από τα έξι τμήματα αμφορέων βρέθηκαν στη θέση τους. Στο κέντρο της λεκάνης βρέθηκε κυκλικό αποτύπωμα (διαμέτρου περίπου 47 εκ.) που δείχνει ότι ίσως στο σημείο αυτό να υπήρχε κάποιου είδους δοχείο.

Μεταξύ της κυκλικής λεκάνης και της ανατολικής στοάς βρέθηκαν κατάλοιπα δαπέδων και τοίχων και κάτω από αυτά εντοπίστηκε ο φυσικός βράχος ο οποίος διατηρεί εγκοπές που ανοίχθηκαν για την ανέγερση κτισμάτων. Η τομή εδώ ήταν πολύ στενή και δεν ήταν δυνατόν να φανούν οι διάφορες φάσεις ανοικοδόμησης, όμως ξεκαθαρίστηκε η σχέση μεταξύ της λεκάνης και των δαπέδων. Μεταξύ της λεκάνης και της υπόγειας στέρνας στα νότια (που ανασκάφηκε το 2014) εντοπίστηκε ένα στρώμα που χρονολογείται στη μεταβατική περίοδο από την Κυπρο-Κλασσική στην Ελληνιστική περίοδο. Το στρώμα περιείχε μεγάλες ποσότητες κεραμικής.

Η μεγάλη ορθογώνια λεκάνη που είχε εντοπιστεί το 2014 στην ίδια αυλή και η κυκλική λεκάνη βρίσκονται στον ίδιο άξονα με μια μεγάλη αίθουσα (αρ. 10) με δάπεδο από θραυσμένα βότσαλα. Η βορειοδυτική γωνία της μεγάλης λεκάνης είχε διαταραχθεί από μια μεγάλη εγκοπή στα ανατολικά του δυτικού στυλοβάτη και έτσι ήταν δυνατή η ανασκαφή κάτω από το δάπεδο της λεκάνης, όπου εντοπίστηκε στρώμα από μπάζα με κατά τόπους κενά στο χώμα. Βρέθηκε και γύψινο επίχρισμα σε τοίχο που περιβάλλει τη λεκάνη.

Διανοίχθηκε επίσης τομή στο διάδρομο αρ. 29, μεταξύ της μεγάλης αίθουσας με το βοτσαλωτό δάπεδο αρ. 10 και της «Ρωμαϊκής Οικίας». Σκοπός της τομής αυτής ήταν να εξακριβωθούν τα αποτελέσματα ερευνών περασμένων χρόνων που έγιναν στο δυτικό άκρο του διαδρόμου. Οι τομές αυτές έδειξαν ότι το δάπεδο του διαδρόμου με αρ. 29 βρισκόταν κάτω από τα ψηφιδωτά και στις δύο πλευρές και ότι είχε πάθει ζημιές από σεισμούς. Το τμήμα του διαδρόμου που αποκαλύφθηκε το 2016 φανέρωσε ότι κάτω από το υπόστρωμα του πρώτου δαπέδου υπάρχουν ακόμη δύο δάπεδα. Το δεύτερο δάπεδο είχε υποστεί ζημιές από την οικοδόμηση του νότιου τοίχου της μεγάλης αίθουσας αρ. 10. Κατά μήκος του τοίχου της «Ρωμαϊκής Οικίας» βρέθηκε αγωγός πλαισιωμένος από μεσαίου μεγέθους πέτρες.

Στην «Οικία του Αιώνα» έγιναν καθαρισμοί των αρχιτεκτονικών καταλοίπων και έγινε και αεροφωτογράφιση των χώρων, ούτως ώστε να μελετηθούν καλύτερα τα αρχιτεκτονικά κατάλοιπα.