Η λιθόκτιστη οικία πρώην ιδιοκτησίας Χατζησταματίου (εικ. 1) βρίσκεται στην παραλιακή οδό Νικ. Πλαστήρα 20 στο ανατολικό άκρο της πόλης του Βόλου (εικ. 2), στον όμορο της αυλής του Αρχαιολογικού Μουσείου και του Νοσοκομείου χώρο και σε επαφή με το γραμμικό πάρκο του Αναύρου, το οποίο εκτείνεται ανάμεσα στην εκκλησία του Αγ. Κωνσταντίνου στα δυτικά και το χείμαρρο Άναυρο στα ανατολικά.

Το ιστορικό πλαίσιο και η ιστορία του κτιρίου

Μετά την προσάρτηση της Θεσσαλίας στο ελληνικό κράτος το 1881, ο Βόλος εισέρχεται σε μια νέα περίοδο κοινωνικών και οικονομικών μετασχηματισμών, γίνεται πεδίο έντονης βιομηχανικής δραστηριότητας και στο τέλος του 19ου αιώνα μετατρέπεται στο δεύτερο, μετά τον Πειραιά, βιομηχανικό κέντρο της χώρας (σημ. 1). Μέχρι το 1920 η ανάπτυξη της πόλης έχει πάρει την οριστική ενιαία μορφή της (σημ. 2).

Η προκυμαία της νέας πόλης διαμορφώνεται σε ζώνη αναψυχής που εκτείνεται από το λιμάνι μέχρι το Αρχαιολογικό Μουσείο και τα θαλάσσια λουτρά του Αναύρου (σημ. 3). Ο μεγάλος όγκος των βιομηχανικών κτιρίων εγκαθίσταται γύρω από το λιμάνι και τον σιδηροδρομικό σταθμό, ενώ στο παραλιακό μέτωπο, στην περιοχή του Αγίου Κωνσταντίνου, κτίζεται το 1919 μόνο η αλευροβιομηχανία Καπουρνιώτη-Παντή (σημ. 4) στη θέση της αλευροβιομηχανίας Ζαρζάμπα-Ρήγα (1884) και σε μικρή απόσταση, επί της οδού Πολυμέρη, η πλακοποιΐα Μεφσούτ το 1920.

Στις αρχές του 20ού αιώνα, η κοινωνική γεωγραφία του αστικού χώρου αρχίζει να αντανακλά τη διαστρωμάτωση της νέας κοινωνίας.

Παρόλο λοιπόν που μέχρι το 1926 η περιοχή ανάμεσα στον Αγ. Κωνσταντίνο και τον Άναυρο ήταν εκτός σχεδίου πόλεως, η πρόοδος της ανοικοδόμησης στην ανατολική συνοικία του Αγίου Κωνσταντίνου προσέλκυσε στις τρεις πρώτες δεκαετίες του 20ού αιώνα νέα αστικά στρώματα και κτίστηκαν πολυτελείς κατοικίες (σημ. 5) αλλά και κατοικίες μικροαστών στην περιοχή γύρω από τον Άναυρο.

Στην περίοδο του μεσοπολέμου, νέοι τρόποι ζωής και αστικές συνήθειες «εγκαταστάθηκαν» φέρνοντας μαζί τους ανάλογους τύπους στην αρχιτεκτονική των κτιρίων. Η πηλιορείτικη παράδοση μένει συστηματικά έξω από το αρχιτεκτονικό ρεπερτόριο της πόλης, ενώ ο νεοκλασικισμός και ο εκλεκτικισμός αποτελούν τα κύρια αρχιτεκτονικά ρεύματα της εποχής, παράλληλα με την εμφάνιση του μοντερνισμού (σημ. 6).

Οι νεωτερισμοί στην αρχιτεκτονική, ιδιαίτερα την πρώτη εικοσαετία του 20ού αιώνα, δεν συνοδεύτηκαν από αντίστοιχο ενδιαφέρον για το σχεδιασμό και τη χωροθέτηση του δημόσιου χώρου. ΄Ετσι, μια σειρά από δημόσια κτίρια κατασκευάζονται στο ανατολικό όριο της πόλης, εκτός του τότε εγκεκριμένου ρυμοτομικού σχεδίου, με δωρεές εύπορων Αιγυπτιωτών (εικ. 3).

Μεταξύ αυτών, το νεοκλασικό κτίριο του Αχιλλοπούλειου Νοσοκομείου Βόλου (εικ. 3 [2]) το 1903 (σημ. 7), το εκλεκτιστικής αρχιτεκτονικής κτίριο του Μαιευτηρίου (εικ. 3 [1]) το 1906 (σημ. 8) και το νεοκλασικό κτίριο του Αθανασάκειου Αρχαιολογικού Μουσείου (εικ. 3 [3]) το 1909 (σημ. 9).

Ανάμεσα στις δημόσιες εκτάσεις που φιλοξενούσαν τα κτίρια αυτά, επί της παραλιακής οδού, υπήρχε ένας μικρός θύλακας δύο όμορων ιδιοκτησιών (εικ. 3 [4]): η ιδιοκτησία Δημητρίου Παλιούγκα και η ιδιοκτησία, μετά το 1916, Αθανασίου Ζησοπούλου στην έκταση της οποίας κτίστηκε το υπό μελέτη οίκημα.

Στην ιδιοκτησία του Δημ. Παλιούγκα, πρώην ιδιοκτησία Χαρίση Δεληγιάννη, υπήρχαν δύο ασβεστοκάμινοι (σημ. 10) οι οποίες λειτουργούσαν από τα τέλη του 19ου αιώνα μέχρι τον Β΄ Παγκόσμιο Πόλεμο και κατεδαφίστηκαν μετά τους σεισμούς του 1955. Το 1941 η ιδιοκτησία μοιράστηκε ως προικώο στις τρεις θυγατέρες Παλιούγκα. Έτσι, δημιουργήθηκαν τρεις ιδιοκτησίες: η ιδιοκτησία Αριστείδη Λαούδη, η ιδιοκτησία Ερασμίας Παλιούγκα και η ιδιοκτησία Ευσταθίου Πανταζή, μετέπειτα ιδιοκτησία Κίμωνα Χατζησταματίου, στην οποία υπήρχε διώροφη κατοικία, μαγειρείο, οικίσκος δύο δωματίων και σταύλος (εικ. 4).

Ο Αθανάσιος Ζησόπουλος αγόρασε το όμορο οικόπεδο το 1916 – αφού δηλαδή είχαν κτιστεί το Μουσείο και το Νοσοκομείο. Στο οικόπεδο δεν υπήρχαν κτίσματα (σημ. 11).

Ανήγειρε «ιδίαις δαπάναις» το λιθόκτιστο τριώροφο υπό μελέτη οίκημα [1], κατά τα έτη 1916-1920, σε μια εποχή δηλαδή που η περιοχή αυτή αναπτύσσεται ραγδαία.

Το υπόγειο του οικήματος λειτουργούσε ως αποθήκη, ενώ το ισόγειο λειτουργούσε πιθανόν ως αποθήκη, πιθανόν ως κατάστημα εδώδιμων-αποικιακών ειδών, τουλάχιστον μέχρι τις αρχές της δεκαετίας του ’30 και οι όροφοι ως κατοικία της οικογένειας Ζησοπούλου (σημ. 12).

Μετά την εγκατάσταση των προσφύγων το 1922 στην περιοχή, η πόλη τροφοδοτήθηκε με νέα εργατικά χέρια και ολοκλήρωσε τον βιομηχανικό μετασχηματισμό της. Πρόσφυγες τεχνίτες από τη Σμύρνη, τη Σύμη και την Πόλη, έστησαν στην ακτή ανάμεσα στην εκκλησία του Αγ. Κωνσταντίνου (σημ. 13) και το χείμαρρο Άναυρο πάνω από 20 ναυπηγικά εργαστήρια. Πολλοί από αυτούς κατοικούσαν στην περιοχή μαζί με αρκετές οικογένειες ψαράδων, όπως η οικογένεια Φράγκου που κατοικούσε στο ισόγειο σπιτάκι [8] στην ιδιοκτησία Δημ. Παλιούγκα.

Το καρνάγιο αποδείχτηκε εξαιρετικά δραστήριο μέχρι τον πόλεμο, και επιβίωσε –παρά τη μεταπολεμική κάμψη του– μέχρις ότου εκτοπιστεί από την αξιοποίηση της ακτής μετά τους σεισμούς του 1955-56.

Εν τω μεταξύ, ανάμεσα στα έτη 1926 και 1930 έγινε η επέκταση και η αναθεώρηση του ρυμοτομικού σχεδίου της πόλης σύμφωνα με τις διατάξεις του νέου πολεοδομικού διατάγματος του 1923, που αντικατέστησε το πεπαλαιωμένο θεσμικό πλαίσιο του 19ου αιώνα με σύγχρονες αντιλήψεις για την κατασκευή των πόλεων.

Το αναθεωρημένο ρυμοτομικό σχέδιο, που παρέμεινε σε ισχύ μέχρι το 1956 οπότε και αναθεωρήθηκε, επέκτεινε την επιφάνεια του αστικού χώρου μεταξύ των χειμάρρων Αναύρου και Κραυσίδονα (σημ. 14).

Στις αρχές της δεκαετίας του 1930, περίοδο έντονης ναυπηγικής δραστηριότητας στην περιοχή αλλά και περίοδο κατά την οποία η πλαζ του Αναύρου βρίσκονταν στην ακμή της λειτουργίας της, ο Αθ. Ζησόπουλος έκτισε μία δεύτερη διώροφη οικοδομή [2] (εικ. 4), που εφάπτεται του λιθόκτιστου κτίσματος.

΄Ηταν από τα πρώτα κτίσματα για την κατασκευή των οποίων χρησιμοποιήθηκε οπλισμένο σκυρόδεμα. Σχεδιάστηκε και κατασκευάστηκε από τον μηχανικό Ζαράρη, κάτοικο της περιοχής, με τεχνογνωσία που εισήγαγε από τη Ρουμανία. Το κτίριο καλύφθηκε με πλάκα από οπλισμένο σκυρόδεμα. Σε επαφή με τη βόρεια πλευρά του κτίστηκε και το ισόγειο κεραμοσκεπές κτίσμα [3] (εικ. 4).

Στο μπροστινό νότιο τμήμα του ισογείου του κτίσματος [2] λειτουργούσε καφενείο, ενώ στο πίσω τμήμα του, όπως αναφέρεται στο συμβόλαιο του 1951, λειτουργούσε «λουτροθεραπευτήριον» με θερμά λουτρά (σημ. 15). Ο όροφος χρησιμοποιούνταν ως κατοικία. Στο ισόγειο του τριώροφου λιθόκτιστου κτίσματος [1] στεγάζονταν την περίοδο αυτή τα αποδυτήρια και βοηθητικές λειτουργίες των λουτρών. Η λειτουργία των λουτρών σταμάτησε στα τέλη της δεκαετίας του 1940 (σημ. 16), ενώ το καφενείο συνέχισε τη λειτουργία του έως το 1952.

Το 1942, ερχόμενες από την Καβάλα, οι οικογένειες Στυλιανού και Αριστοτέλη Χατζησταματίου νοίκιασαν από την οικογένεια Ζησοπούλου το χώρο και τα κτίσματα προκειμένου να τα χρησιμοποιήσουν τόσο ως κατοικία όσο και για την ανάπτυξη των επαγγελματικών τους δραστηριοτήτων.

Σημειώνουμε εδώ πως μετά την απελευθέρωση του Βόλου από τη γερμανική κατοχή και μέχρι τους σεισμούς του 1955, και ενώ οι δραστηριότητες του καρνάγιου βρισκόταν σε ύφεση, στην περιοχή μεταξύ Αγ. Κωνσταντίνου και Αναύρου –και κυρίως στα δύο άκρα της– αναπτύχθηκαν χώροι διασκέδασης που απευθύνονταν σε μικρομεσαία κοινωνικά στρώματα (σημ. 17).

Το 1950 ο Κίμων Χατζησταματίου αγόρασε το ανατολικό τμήμα της ιδιοκτησίας Ζησοπούλου (σημ. 18), εμβαδού 254,96 τ.μ., στην οποία δεν υπήρχαν κτίσματα. Το 1951 (σημ. 19) οι αδελφοί Κίμων και Αριστοτέλης Χατζησταματίου αγόρασαν εξ αδιαιρέτου το 85% του υπόλοιπου τμήματος, έκτασης 644,67 τ.μ., της ιδιοκτησίας Ζησοπούλου και το 1955 (σημ. 20) το εναπομείναν 15%, στο οποίο περιλαμβάνονταν το διώροφο κτίσμα [2], το ισόγειο κεραμοσκεπές [3] αλλά και το λιθόκτιστο υπό μελέτη κτίσμα [1] (εικ. 5).

Από τη στιγμή που η ιδιοκτησία βρέθηκε στα χέρια της οικογένειας Χατζησταματίου, άλλαξε και η χρήση των ισογείων των κτισμάτων, που πλέον εξυπηρετούσαν τις ανάγκες των νέων ιδιοκτητών. ΄Ετσι, τόσο το ισόγειο του διώροφου κτίσματος [2] όσο και εκείνο του λιθόκτιστου τριώροφου [1] μετατράπηκαν σε σιταποθήκες. Σε σιταποθήκη μετατράπηκε και το υπόγειο του λιθόκτιστου κτίσματος. Το ισόγειο κεραμοσκεπές κτίσμα [3] μετατράπηκε σε τυροκομείο για την παρασκευή κασεριού, μια δραστηριότητα που συνεχίστηκε μέχρι το 1960. Για το πλύσιμο των καζανιών έγινε ιδιωτική γεώτρηση στη βορειοδυτική γωνία του λίθινου κτίσματος [1], ενώ τα υπολείμματα αυτής της δραστηριότητας (καζάνια και μεγάλα κοφίνια) υπάρχουν και σήμερα στο χώρο του υπογείου του (εικ. 6). Σε επαφή με τη νότια πλευρά του κτίστηκε τo υπόστεγο [4] που φιλοξενούσε τα γεωργικά μηχανήματα της οικογένειας (εικ. 5).

Ο όροφος του διωρόφου κτίσματος λειτουργούσε ως κατοικία της οικογένειας Αριστοτέλη Χατζησταματίου, ενώ οι δύο όροφοι του λιθόκτιστου κτίσματος ως κατοικία της οικογένειας Κίμωνα Χατζησταματίου.

Το 1955 και το 1956 οι καταστροφικοί σεισμοί που έπληξαν την πόλη του Βόλου είχαν σαν αποτέλεσμα την κατεδάφιση του τρίτου ορόφου του λιθόκτιστου κτίσματος [1] και του υπόστεγου [4], το οποίο ανακατασκευάστηκε και χρησιμοποιήθηκε ως συνεργείο επισκευής των γεωργικών μηχανημάτων της οικογένειας Χατζησταματίου.

Στο εγγύς περιβάλλον της ιδιοκτησίας, μετά τους σεισμούς του 1955-56, η ανανέωση του δημόσιου χώρου περιλάμβανε και τη διαμόρφωση της παραλιακής ζώνης του Αναύρου.

Το 1958 το Λιμενικό Ταμείο είχε ήδη προβεί στην επιχωμάτωση του παραλιακού μετώπου από τον Αγ. Κωνσταντίνο μέχρι τον Άναυρο (εικ. 7), παρέχοντας τη δυνατότητα δημιουργίας ενός νέου χώρου αναψυχής σε συνδυασμό με την επιδιωκόμενη τουριστική ανάπτυξη.

΄Ετσι στην περιοχή κτίστηκε το ξενοδοχείο «Ξενία» που εγκαινιάστηκε το 1961, το Ενυδρείο (1970), ενώ στα μέσα της δεκαετίας του 1980 η παραθαλάσσια αυτή ζώνη παραχωρήθηκε στον Δήμο Βόλου και το 1985 ανασχεδιάστηκε από την αρχιτέκτονα Ήβη Αγγελοπούλου ως γραμμικό πάρκο-περίπατος, διακοσμημένο με γλυπτά Ευρωπαίων καλλιτεχνών.

Στο χώρο του πάρκου δημιουργήθηκε μικρό αμφιθέατρο, παιδική χαρά, αναψυκτήριο, ενώ φιλοξενούνται και ομοιώματα νεολιθικών καλυβών για εκπαιδευτικά προγράμματα. Παράλληλα, αναμορφώθηκε και η πλαζ του Αναύρου, με αποτέλεσμα τη συνολική αναβάθμιση της περιοχής και τη μετατροπή της σε χώρο περιπάτου, ενώ ήδη από το 1959 είχε κτιστεί η νέα πτέρυγα του Νοσοκομείου Βόλου στη θέση του κατεδαφισθέντος νεοκλασικού κτιρίου.

Μετά τους σεισμούς του 1956, στο βόρειο τμήμα των ιδιοκτησιών Χατζησταματίου, στην όμορο ιδιοκτησία Λαούδη, κτίστηκε τριώροφη αντισεισμική οικοδομή [5] (σημ. 21) και στην ιδιοκτησία Παλιούγκα ισόγεια αντισεισμική κατοικία [6] (εικ. 5). Στην ιδιοκτησία Πανταζή, έκτασης 397,82 τ.μ., στη θέση των κτισμάτων που κατεδαφίστηκαν κτίστηκε ισόγεια αντισεισμική κατοικία [7] (εικ. 5), ενώ διατηρήθηκε ο λιθόκτιστος οικίσκος [8]. Η ιδιοκτησία Πανταζή αγοράστηκε το 1965 από τον Κίμωνα Χατζησταματίου (σημ. 22).

Η οικογένεια Αριστοτέλη Χατζησταματίου διέμενε στο διώροφο κτίσμα [2] έως το 1996. Η οικογένεια Κίμωνα Χατζησταματίου εγκατέλειψε το λιθόκτιστο οίκημα [1] το 1961, ενώ σε αυτό κατοίκησε έως το 1994 η οικογένεια Σίμου Χατζησταματίου, οπότε και τo κτίριο εγκαταλείφθηκε οριστικά.

Θα θέλαμε να σημειώσουμε εδώ πως για μεγάλο χρονικό διάστημα, μέχρι το 1972, η οικογένεια φιλοξενούσε στο βορειοανατολικό δωμάτιο του ισογείου τον Μπαμπά Σεΐτ (σημ. 23), τον τελευταίο ηγούμενο του τεκέ των Αλβανών Μπεκτασήδων (σημ. 24) στο Ιρενί Φαρσάλων.

To 2003, η Τεχνική Εταιρεία «Σ. και Κ. Νάκος Ο.Ε.» αγόρασε τις ιδιοκτησίες του Κίμωνα Χατζησταματίου.

Η γειτνίαση των ιδιοκτησιών αυτών με τους δημόσιους χώρους του Μουσείου και του Νοσοκομείου, οι κτιριακές υποδομές των οποίων επεκτάθηκαν την τελευταία εικοσαετία, αλλά και της εκκλησίας της Αγίας Τριάδας (σημ. 25), o κίνδυνος ανέγερσης πολυώροφων οικοδομών και η αναγκαιότητα ύπαρξης ελεύθερων χώρων για μελλοντικές δραστηριότητες των δύο όμορων δημόσιων φορέων, είχαν ως αποτέλεσμα την αναγκαστική απαλλοτρίωση του συνόλου των ιδιοκτησιών, συνολικού εμβαδού 2.398,46 τ.μ., εξ ημισείας από το Υπουργείο Υγείας και Πρόνοιας (Αχιλλοπούλειο Νοσοκομείο Βόλου) και το Υπουργείο Πολιτισμού (ΙΓ΄ Εφορεία Προϊστορικών και Κλασικών Αρχαιοτήτων) το 2002 (σημ. 26) (εικ. 8). Η παράδοση-παραλαβή των ακινήτων που πέρασαν στην ιδιοκτησία του Υπουργείου Πολιτισμού έγινε στις 10 Απριλίου 2006, ενώ την ίδια χρονιά παρέλαβε τα ακίνητα που πέρασαν στην ιδιοκτησία του και το Υπουργείο Υγείας και Πρόνοιας.

Το 2007, το διώροφο κτίσμα [2] (εικ. 5) και η ισόγεια κεραμοσκεπής αποθήκη [3] (εικ. 5), ιδιοκτησίας πλέον του Αχιλλοπούλειου Νοσοκομείου κατεδαφίστηκαν, ενώ το τριώροφο κτίσμα [5] πρώην ιδιοκτησίας Λαούδη λειτουργεί ως ξενώνας ψυχικά νοσούντων ατόμων.

Το ισόγειο μετασεισμικό κτίσμα [7] πρώην ιδιοκτησίας Κίμωνα Χατζησταματίου χρησιμοποιείται ως αποθήκη αρχαιοτήτων του Αρχαιολογικού Μουσείου Βόλου, το ισόγειο μετασεισμικό κτίσμα [6] πρώην ιδιοκτησίας Παλιούγκα είναι ακατοίκητο, ενώ το υπόστεγο [4] (εικ. 5) μπροστά από το λιθόκτιστο κτίσμα κατεδαφίστηκε το 2009.

Το υπό μελέτη λιθόκτιστο κτίσμα [1] όπως και το ισόγειο κτίσμα [6] πρώην ιδιοκτησίας Παλιούγκα, ανήκουν εξ ημισείας στο Υπουργείο Υγείας και Πρόνοιας και το Υπουργείο Πολιτισμού.

Προκειμένου να καταστεί δυνατόν τα δύο αυτά κτίρια να επαναχρησιμοποιηθούν, πρόκειται να γίνει πράξη πολυετούς αμοιβαίας παραχώρησης (εικ. 54), έτσι ώστε το μεν λιθόκτιστο κτίσμα [1] να χρησιμοποιηθεί ως κτίριο γραφείων της Αρχαιολογικής Υπηρεσίας, το δε ισόγειο κτίσμα [6] ως ξενώνας για τις ανάγκες του Νοσοκομείου Βόλου.

Αρχιτεκτονική τεκμηρίωση

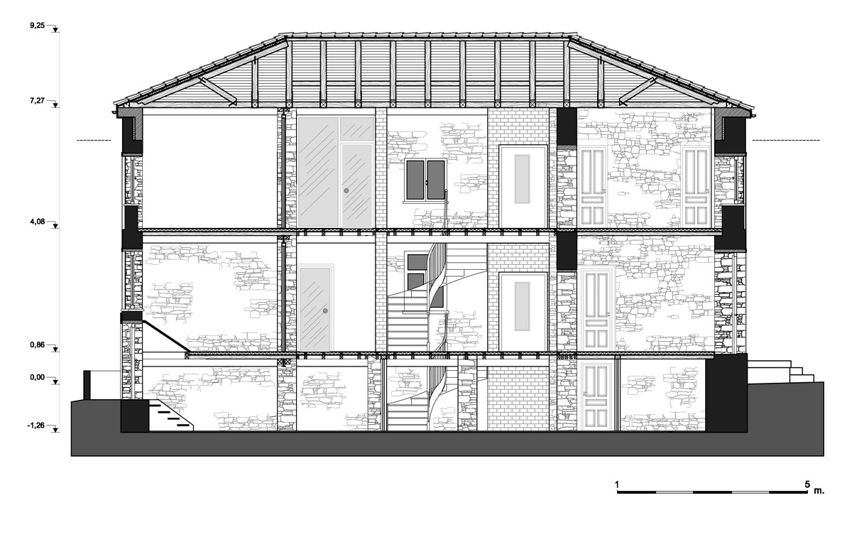
Το κτίριο είναι λιθόκτιστο διώροφο με ημιυπόγειο και επικάλυψη με κεραμοσκεπή τετράρριχτη ξύλινη στέγη (εικ. 9, 10). Το εμβαδό εκάστου ορόφου είναι 135,74 τ.μ.

Στην αρχική του μορφή ήταν τριώροφο κεραμοσκεπές με ημιυπόγειο (ημιυπόγειο, ισόγειο και δύο όροφοι). Ο τελευταίος όροφος κρίθηκε κατεδαφιστέος μετά τους σεισμούς του 1955 και κατεδαφίστηκε μετά τους σεισμούς του 1956. Οι εναπομείναντες όροφοι δεν υπέστησαν σημαντικές ζημιές στη φέρουσα τοιχοποιΐα, ενώ οι φθορές είναι σε περιορισμένο επίπεδο. Eίναι ορθογώνιο, διαστάσεων 16,12×8,72 μ. (εικ. 11, 12, 13). Το πάχος των εξωτερικών λιθοδομών είναι στο επίπεδο του ημιυπόγειου 0,70 μ. και στο επίπεδο του ισογείου και του ορόφου 0,54 εκ.

Σε όλους τους ορόφους στο εσωτερικό του κτιρίου, υπάρχουν δύο συμμετρικές σειρές λίθινων υποστηλωμάτων διαστάσεων 0,54×0,54 μ. πάνω στα οποία στηρίζονται δίδυμοι μεταλλικοί δοκοί ΙΡΕ 180 (εικ. 14) που φέρουν τα πατώματα του ισογείου και του ορόφου. Τα υποστηλώματα της ανατολικής σειράς συνδέονται με φέρουσα λιθοδομή. Στο επίπεδο του ημιυπόγειου, υπάρχουν τρία ακόμη λίθινα υποστηλώματα στο κεντρικό τμήμα της κάτοψης. Μεταγενέστερα, στο επίπεδο του ισογείου προστέθηκε ένα ακόμη υποστήλωμα από τούβλα διαστάσεων 0,45×0,45 μ., ενώ τόσο στο ημιυπόγειο όσο και στο ισόγειο τοποθετήθηκε ένας αριθμός πρόχειρων ξύλινων υποστηλωμάτων, προκειμένου να στερεωθούν καλύτερα οι ξύλινες δοκοί των πατωμάτων.

Τα πατώματα είναι ξύλινα με διαδοκίδες ανά 40 εκ. και τελικό δάπεδο τάβλες 15 εκ.

Το κτίριο είναι κτισμένο κατά τα παραδοσιακά πρότυπα με σαφείς επιρροές από το νεοκλασικισμό.

Οι όψεις οργανώνονται συμμετρικά ως προς τον κατακόρυφο άξονα. Η νότια και η ανατολική όψη χαρακτηρίζονται ως κύριες όψεις, ενώ η δυτική και η βόρεια ως δευτερεύουσες (εικ. 15, 16, 17, 18) με τα απαραίτητα για τη λειτουργία του κτιρίου ανοίγματα, χωρίς ιδιαίτερα μορφολογικά στοιχεία.

Το κτίσμα έχει δύο κύριες εισόδους. Η είσοδος στην ανατολική όψη οδηγεί στο χώρο κατοίκησης, ενώ η είσοδος στη νότια όψη οδηγεί στο χώρο επαγγελματικής δραστηριότητας. Οι είσοδοι στη δυτική πλευρά είναι βοηθητικές.

Στο κεντρικό τμήμα της ανατολικής όψης η βασική λιθοδομή προεξέχει 0,38 μ. εκατέρωθεν της εισόδου και σε μήκος 2,60 μ., ενώ στο κεντρικό τμήμα της νότιας όψης προεξέχει κατά 0,50 μ. και σε μήκος 7,80 μ. Η βάση του κτιρίου προεξέχει περιμετρικά 5 εκ.

Η λιθοδομή είναι εμφανής στη δυτική και βόρεια όψη του κτιρίου, όπως και σε τμήματα της ανατολικής και νότιας όψης. Το προεξέχον τμήμα της νότιας όψης είναι σοβατισμένο με τραβηχτό σοβά, ενώ το προεξέχον τμήμα της ανατολικής όψης είναι σοβατισμένο μόνο στο επίπεδο του ισογείου. Στα ανοίγματα των κύριων όψεων υπάρχουν διακοσμητικά περιθώρια από τραβηχτό σοβά.

Όπως μας πληροφόρησε ο παλιός ιδιοκτήτης κ. Νικόλαος Χατζησταματίου, στην αρχική μορφή του κτιρίου ο τελευταίος όροφος που κατεδαφίστηκε ήταν λιθόκτιστος με μπαλκόνι στη νότια όψη σε μήκος 7,80 μ., όσο δηλαδή και το μήκος της προεξοχής. Στο μπαλκόνι, το οποίο στηριζόταν σε λίθινα υποστηλώματα, οδηγούσαν τρεις μπαλκονόπορτες συμμετρικές ως προς την όψη, το πλάτος των οποίων ήταν μεγαλύτερο από το πλάτος των παραθύρων του πρώτου ορόφου, πιθανόν ίσο με το πλάτος των ανοιγμάτων του ισογείου.

Τα κουφώματα στο ισόγειο και τον όροφο είναι ξύλινα δίφυλλα εσωτερικά με τετράφυλλα γαλλικά παντζούρια εξωτερικά. Τα κουφώματα στο ημιυπόγειο είναι χωρίς παντζούρια και φέρουν εξωτερική σιδεριά ασφαλείας.

Η θύρα της ανατολικής εισόδου είναι δίφυλλη ταμπλαδωτή, με ανοιγόμενο τζαμιλίκι και διακοσμητική σιδεριά σε κάθε ένα από τα ανοιγόμενα τμήματά της. Στην είσοδο αυτή οδηγεί μαρμάρινη σκάλα με τρεις βαθμίδες, ενώ το κατώφλι της εισόδου είναι στρωμένο με πλακάκια από την κοντινή πλακοποιΐα Μεφσούτ, με φυτικά διακοσμητικά στοιχεία (εικ. 19).

Η θύρα της νότιας εισόδου είναι δίφυλλη ταμπλαδωτή με φεγγίτη στο άνω μέρος, σταθερά τζαμιλίκια και ταμπλαδωτά ανοιγόμενα παντζούρια σε καθένα από τα τμήματά της.

Η βοηθητική θύρα στη δυτική όψη στο επίπεδο του ισογείου είναι δίφυλλη ταμπλαδωτή με σταθερά τζαμιλίκια και ταμπλαδωτά ανοιγόμενα παντζούρια σε καθένα από τα τμήματά της. Χρησίμευε προφανώς μόνο για φορτοεκφόρτωση εμπορευμάτων, αφού βρίσκεται αρκετά ψηλότερα από το δάπεδο του ισογείου, ενώ η θύρα πρόσβασης προς το ημιυπόγειο είναι δίφυλλη ταμπλαδωτή χωρίς ανοίγματα, με ύψος 1,32 μ. που υπολείπεται του κανονικού.

Η φέρουσα εσωτερική λιθοδομή κατά μήκος του άξονα Βορρά-Νότου χωρίζει το κτίσμα σε δύο διακριτά τμήματα: το ανατολικό και το δυτικό (εικ. 20).

Στο ισόγειο του κτιρίου το ανατολικό τμήμα ήταν χώρος κατοίκησης και το δυτικό χώρος επαγγελματικής δραστηριότητας. Οι δύο αυτοί χώροι επικοινωνούσαν μόνο μέσω μιας στενής διόδου.

Στον πρώτο όροφο που ήταν αμιγώς χώρος κατοίκησης, όπως και ο δεύτερος όροφος που κατεδαφίστηκε, τα δύο ανατολικά δωμάτια επικοινωνούν με τους υπόλοιπους χώρους της κατοικίας επίσης μέσω μόνο μιας στενής διόδου.

Η σκάλα που βρίσκεται στο κέντρο του ανατολικού τμήματος του κτιρίου και συνδέει τους χώρους κατοίκησης, εφάπτεται της εσωτερικής λιθοδομής και είναι ημικυκλική μέχρι τον πρώτο όροφο, ενώ ευθύγραμμη μέχρι τον δεύτερο όροφο. Μία πρόχειρη ξύλινη σκάλα συνέδεε την κατοικία με το χώρο του ημιυπογείου.

Ο κ. Νικ. Χατζησταματίου αναφέρει ότι ο χώρος του τρίτου ορόφου ήταν ενιαίος, χωρίς τον φέροντα εσωτερικό τοίχο και χωρίς εσωτερικά χωρίσματα, και χρησιμοποιούνταν ως χώρος υποδοχής. Ο τοίχος που στήριζε τη σκάλα δημιουργούσε τον μοναδικό ιδιαίτερο χώρο του ορόφου στη βορειοανατολική γωνία του κτιρίου, όπου βρισκόταν και το γραφείο του πατέρα. Η τετράρριχτη στέγη στηριζόταν με ξύλινα ζευκτά στα εσωτερικά υποστηλώματα και στους εξωτερικούς περιμετρικούς φέροντες τοίχους.

Στο υπόγειο (εικ. 21) και στο δυτικό τμήμα του ισογείου (εικ. 22), όπου και ο χώρος επαγγελματικής δραστηριότητας, δεν υπάρχουν εσωτερικά χωρίσματα και η λιθοδομή στο εσωτερικό τους είναι εμφανής. Στο ανατολικό τμήμα του ισογείου και του ορόφου, στους χώρους κατοικίας, δημιουργούνται από δύο δωμάτια που είναι επιχρισμένα, όπως και το κεντρικό τμήμα στο οποίο βρίσκεται η σκάλα ανόδου.

Στον πρώτο όροφο όπου υπήρχαν τα δωμάτια, η κουζίνα και ο χώρος υγιεινής της κατοικίας, τα εσωτερικά χωρίσματα είναι πρόχειρα από διπλό νοβοπάν και ταπετσαρία και πιθανά τοποθετήθηκαν μετά την κατεδάφιση του τελευταίου ορόφου. Οι περιμετρικοί τοίχοι είναι επιχρισμένοι με σοβά, ενώ υπάρχει ψευδοροφή από νοβοπάν. Το δυτικό δωμάτιο του ορόφου χρησιμοποιήθηκε ως αποθηκευτικός χώρος με εμφανή τη λιθοδομή στους περιμετρικούς τοίχους (εικ. 23), χωρίς ψευδοροφή αλλά με εμφανή τα οριζόντια δοκάρια του ξύλινου δαπέδου του ορόφου που κατεδαφίστηκε.

Η αποχέτευση του κτιρίου εξασφαλιζόταν από πηλοσωλήνα ενσωματωμένο στην τοιχοποιΐα της βόρειας όψης.

Το κτίριο έχει υποστεί μια σειρά επεμβάσεων που αλλοιώνουν την αρχική του μορφή.

Το 1935, όταν κτίστηκε σε επαφή με τη νοτιοδυτική γωνία του κτιρίου το διώροφο κτίσμα [2] (εικ. 4) από οπλισμένο σκυρόδεμα, σφραγίστηκε με λιθοδομή το παράθυρο στο νότιο μέρος της δυτικής όψης του ορόφου.

Μετά το 1951 οι επαγγελματικές δραστηριότητες των νέων ιδιοκτητών συνεπάγονται μια σειρά μετατροπών στη λειτουργία αλλά και την αρχιτεκτονική μορφή του κτιρίου. Σε επίπεδο κάτοψης, ο χώρος κατοίκησης απομονώθηκε από τους χώρους επαγγελματικής δραστηριότητας τόσο με το κλείσιμο της διόδου επικοινωνίας στο επίπεδο του ισογείου όσο και με το κλείσιμο της σκάλας που οδηγούσε στο ημιυπόγειο.

Στις όψεις του κτιρίου στο επίπεδο του ισογείου που πλέον χρησιμοποιούνταν ως σιταποθήκη, σφραγίστηκε το παράθυρο της βόρειας όψης όπως και τα δύο παράθυρα της νότιας όψης, σε επαφή με την οποία κατασκευάστηκε ημιυπαίθριος κεραμοσκεπής χώρος που στέγαζε το συνεργείο επισκευής των αγροτικών μηχανημάτων της οικογένειας και ο οποίος κατεδαφίστηκε το 2009.

Επίσης σφραγίστηκαν τα παράθυρα της βόρειας και της ανατολικής όψης του ημιυπογείου. Τέλος, μετά τους σεισμούς σφραγίστηκαν πρόχειρα με τσιμεντόλιθους τα δύο παράθυρα της δυτικής όψης στο επίπεδο του ορόφου, που χρησιμοποιήθηκε ως αποθήκη.

Μετά την κατεδάφιση του τελευταίου ορόφου το 1956 ο χώρος κατοίκησης περιορίστηκε στον πρώτο όροφο και η στέγη ανακατασκευάστηκε εξ ολοκλήρου. Πρόκειται για τετράρριχτη ξύλινη στέγη με επικάλυψη από κεραμίδια γαλλικού τύπου και γείσο από σειρά κεραμιδιών, λάσπη και πλάκες Πηλίου. Η απορροή των ομβρίων γίνεται ελεύθερα μέσω γρηπίδας κατά το κλασικό σύστημα της επεξοχής.

Πρόταση επανάχρησης

Το κτίσμα μετά την αποκατάστασή του πρόκειται να στεγάσει υπηρεσίες του Υπουργείου Πολιτισμού και Τουρισμού.

Οι όροφοι του κτιρίου θα παραμείνουν δύο, ενώ ο τελευταίος όροφος δεν θα ανακατασκευαστεί προκειμένου να μην αυξηθεί υπερβολικά το ύψος του κτιρίου, λαμβάνοντας υπ’ όψιν και τα ύψη των κτισμάτων που βρίσκονται στον περιβάλλοντα χώρο, όπως και το διατηρητέο νεοκλασικό κτίριο του Αρχαιολογικού Μουσείου Βόλου.

Η στατική συμπεριφορά (σημ. 27) του κτιρίου είναι γενικά καλή, για τη στατική του θωράκιση όμως θα τοποθετηθεί «γκανάϊτ» στην εσωτερική πλευρά του υπογείου. Επίσης, τοπικές ενισχύσεις με τσιμεντενέσεις, τοπική αναδόμηση και σφράγιση των φωλεών της περιμετρικής τοιχοποιΐας.

Eπειδή το κτίριο προορίζεται για δημόσια χρήση, επιβάλλεται η αύξηση του ύψους του ορόφου που σήμερα είναι 2,10 μ. ώστε το καθαρό του ύψος να γίνει 3,10 μ. Η αύξηση του ύψους του ορόφου θα γίνει με εμφανή λιθοδομή στην εξωτερική πλευρά της τοιχοποιΐας, με λίθους από περισυλλογή από τον οικίσκο [8] (εικ. 5) στο βόρειο άκρο της ιδιοκτησίας, που κατεδαφίστηκε.

Η στέγη θα ανακατασκευαστεί πλήρως, θα είναι τετράρριχτη ξύλινη με ζευκτά αναρτημένου τύπου, μόνωση και επικάλυψη με κεραμίδια γαλλικού τύπου, ενώ θα είναι εμφανής από τους χώρους του ορόφου. Η απορροή των ομβρίων υδάτων θα γίνεται με μεταλλικά λούκια τοποθετημένα περιμετρικά.

Στο επίπεδο της οροφής του πρώτου ορόφου, μετά την απομάκρυνση των μεταλλικών διατομών, θα τοποθετηθεί περιμετρικό διάζωμα (σενάζ) 0,50 μ. από οπλισμένο σκυρόδεμα, ώστε να «δέσει» η τοιχοποιΐα (εικ. 24).

Θα διατηρηθεί η μορφή των ξύλινων δαπέδων, θα αντικατασταθούν όμως πλήρως τόσο η διαδοκίδωση όσο και το σανίδωμα. Τόσο στο δάπεδο του ισογείου όσο και στο δάπεδο του ορόφου, στην εσωτερική περίμετρο της τοιχοποιΐας θα αγκιστρωθεί περιμετρικά γωνιακή μεταλλική λάμα με διατομή τύπου L. Επάνω της θα πατήσουν οι διαδοκίδες και το σανίδωμα των δαπέδων. Στα δάπεδα θα υπάρχει ξύλινη ψευδοροφή, ηχομόνωση, φράγμα υδρατμών και λάστιχα τριγμών. Το πάτωμα του υπογείου θα στρωθεί με βιομηχανικό δάπεδο.

Στην εξωτερική τοιχοποιΐα (εικ. 25, 26, 27, 28) θα κυριαρχεί η εμφανής λιθοδομή με επιχρισμένα πλαίσια χρώματος γκρι ανοιχτού με τριφτό σοβά γύρω από τα κουφώματα και απλά διακοσμητικά στοιχεία κάτω από τα παράθυρα, στη μικρού βάθους εσοχή που δημιουργείται στη λιθοδομή κάτω από αυτά, στα πρότυπα κτίσματος της ίδιας εποχής και τεχνοτροπίας που βρίσκεται σε κοντινή απόσταση, αλλά και με βάση τα διατηρούμενα μορφολογικά στοιχεία του κτιρίου που παραπέμπουν σε αυτήν τη μορφή αποκατάστασης. Επίχρισμα θα υπάρχει και στη βάση του κτίσματος.

Θα αποσφραγιστούν όλα τα ανοίγματα ώστε το κτίσμα να αποκτήσει την αρχική συμμετρική του μορφή, εκτός από τα ανοίγματα του υπογείου της βόρειας πλευράς. Στη δυτική όψη, η θύρα του ισογείου θα μετατραπεί σε παράθυρο, ενώ για την ευκολότερη πρόσβαση στο ημιυπόγειο και προκειμένου η θύρα να αποκτήσει το ύψος που απαιτείται, προτείνεται η δημιουργία εξωτερικού διαδρόμου πλάτους 1 μ. με σκάλα σε χαμηλότερο επίπεδο από το έδαφος.

Η θύρα της ανατολικής εισόδου θα διατηρηθεί και θα επισκευαστεί. Θα διατηρηθεί επίσης η μαρμάρινη σκάλα και το κατώφλι της εισόδου. Στη νότια όψη η θύρα εισόδου θα αντικατασταθεί με νέα της ίδιας περίπου μορφής, με φεγγίτη στο άνω μέρος αλλά με ανοιγόμενα τζαμιλίκια και προστατευτική σιδεριά, ενώ θα κατασκευαστεί μαρμάρινη σκάλα που θα οδηγεί στη νότια είσοδο. Θα αντικατασταθεί επίσης η θύρα του ημιυπογείου στη δυτική όψη. Η μορφή της νέας θύρας θα είναι ανάλογη με αυτή της νότιας όψης.

Τα κουφώματα θα αντικατασταθούν και στα ανοίγματα θα τοποθετηθούν ανοιγόμενα τζαμιλίκια από αλουμίνιο σε σκούρο κυπαρισσί χρώμα. Δεν θα τοποθετηθούν παντζούρια, δεδομένης της δημόσιας χρήσης του κτίσματος αλλά προστατευτικά κιγκλιδώματα απλής μορφής.

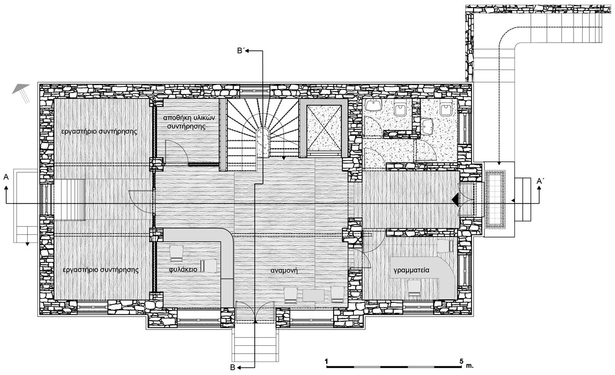
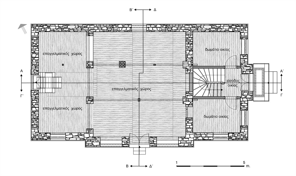
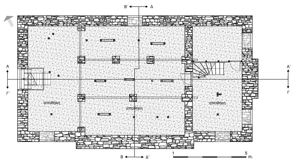
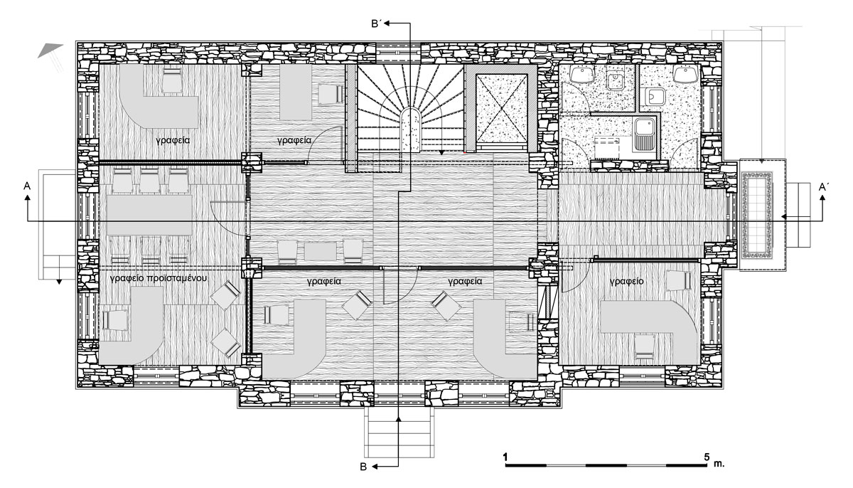
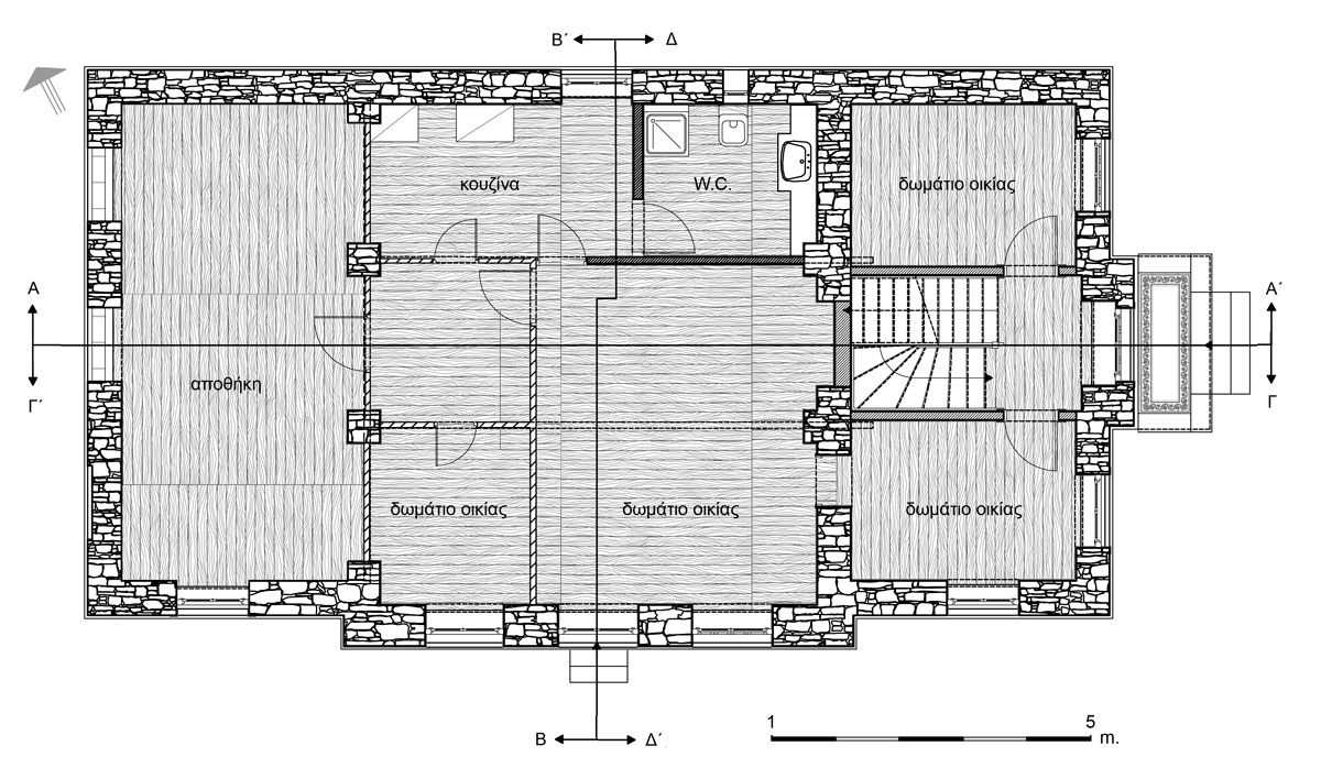
Οι νέες χρήσεις του κτιρίου και οι σύγχρονες απαιτήσεις για τη λειτουργία των κτιρίων σήμερα επιφέρουν μια σειρά αλλαγές στο σχεδιασμό των κατόψεων του κτίσματος και μια σειρά αλλαγών στη διαρρύθμιση των εσωτερικών χώρων (εικ. 29, 30, 31).

Στο ημιυπόγειο, λόγω του χαμηλού ύψους προβλέπονται αποθηκευτικοί χώροι, η βιβλιοθήκη και χώροι τεχνολογικών υποδομών. Στο ισόγειο οι χώροι υποδοχής, η γραμματεία, το φυλάκιο και το εργαστήριο συντήρησης αρχαιοτήτων. Στον όροφο τα γραφεία του προσωπικού. Σε όλους τους ορόφους θα υπάρχουν χώροι υγιεινής.

Η κύρια είσοδος θα βρίσκεται πλέον στη νότια όψη του κτιρίου ενώ στην ανατολική όψη θα κατασκευαστεί ράμπα για τα άτομα με αναπηρία που θα οδηγεί στη δευτερεύουσα ανατολική είσοδο. Επίσης θα κατασκευαστεί ανελκυστήρας.

Τα λίθινα υποστηλώματα και η φέρουσα εσωτερική λιθοδομή θα διατηρηθούν. Η εσωτερική κλίμακα ανόδου που θα είναι ξύλινη και θα συνδέει το ημιυπόγειο και τους υπόλοιπους ορόφους, θα μετατοπιστεί από την αρχική της θέση και θα κατασκευαστεί στο κέντρο της βόρειας πλευράς του κτιρίου προκειμένου ο χώρος να καταστεί πιο λειτουργικός.

Η λιθοδομή των περιμετρικών τοίχων στο εσωτερικό του κτιρίου θα είναι εμφανής. Οι φέροντες τοίχοι στη σκάλα και τον ανελκυστήρα θα είναι επικαλυμμένοι με εμφανή τούβλα. Οι απαραίτητοι διαχωριστικοί τοίχοι θα είναι από γυψοσανίδα ώστε να είναι δυνατές οι οποιεσδήποτε μελλοντικές τροποποιήσεις στη διαρρύθμιση των εσωτερικών χώρων του κτιρίου και –όπου αυτό είναι εφικτό– από ημιδιαφανή γυάλινα διαχωριστικά, ώστε τα στοιχεία διαφάνειας να καθιστούν αντιληπτή την κίνηση στο σύνολο του εσωτερικού χώρου.

Τέλος, το κτίριο θα διαθέτει τις απαραίτητες υποδομές εξυπηρέτησης ατόμων με αναπηρία, ενώ θα πληρεί όλες τις προϋποθέσεις ασφάλειας, θερμομόνωσης και μηχανολογικού εξοπλισμού.

 

Θάλεια Μακρή-Σκοτινιώτη

Αρχιτέκτων και Τοπογράφος Μηχανικός