Στην επανάχρηση του κτηρίου επί της οδού Αρεοπαγίτου 18-20 και στη διαμόρφωση του παράπλευρου οικοπέδου, επί της Βύρωνος 20 –με λειτουργική σύνδεση των δύο ακινήτων– προχωρά το Υπουργείο Πολιτισμού. Η υλοποίηση του έργου θα καταστήσει εφικτή την απόδοση των δύο ακινήτων στο κοινό, ενισχύοντας τις υπηρεσίες εξυπηρέτησης των επισκεπτών του αρχαιολογικού χώρου της Ακρόπολης, με σύγχρονες υποδομές που συνδυάζουν λειτουργικότητα, εκπαιδευτικό και πολιτιστικό χαρακτήρα. Βασικές αρχές σχεδιασμού του έργου είναι η διατήρηση της μορφολογίας και του χαρακτήρα του κτηρίου, επί της Αρεοπαγίτου 18-20, αλλά και του υπαίθριου χαρακτήρα στο οικόπεδο επί της Βύρωνος 20. Με την ολοκλήρωση του έργου, οι δύο χώροι αποδίδονται στο κοινό, καλύπτοντας λειτουργικές ανάγκες του αρχαιολογικού χώρου της Ακρόπολης, ενώ συγχρόνως αναβαθμίζουν την εμπειρία των επισκεπτών.
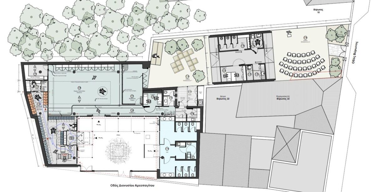
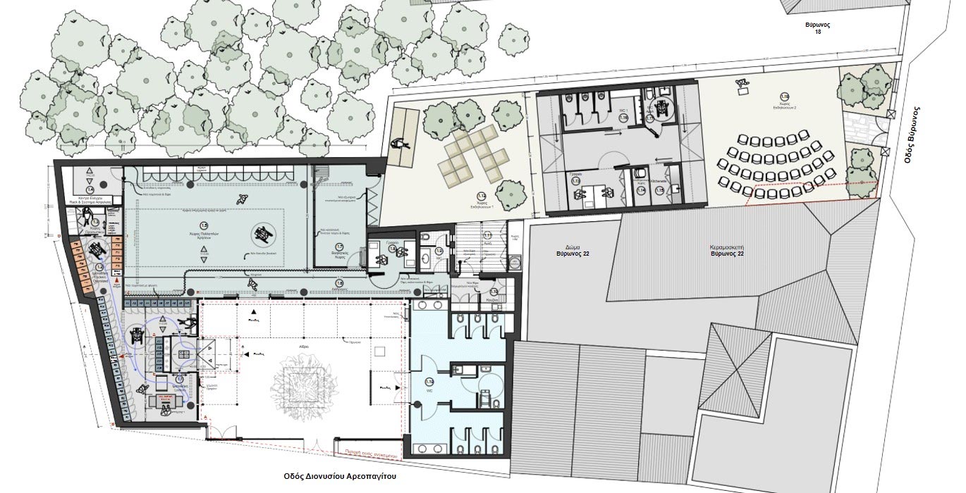
Το κτήριο επί της Διονυσίου Αρεοπαγίτου 18-20 είναι ισόγειο, με χώρους που διαμορφώνονται σε σχήμα Π γύρω από ένα αίθριο. Το κτήριο περιβάλλει την αυλή με μια στοά-σκίαστρο. Η είσοδος όλων των στεγασμένων χώρων πραγματοποιείται μέσω αυτής. Εσωτερικά, το κτήριο περιλαμβάνει ένα ενιαίο χώρο, υποστηριζόμενο από βοηθητικούς χώρους (αποθήκη, γραφείο, ιατρείο), ενώ υπάρχει πρόσβαση από την αυλή σε χώρο υγιεινής. Στο οικόπεδο επί της οδού Βύρωνος 20 υπήρχε παιδική χαρά, που είχε κατασκευάσει ο Δήμος Αθηναίων το 1983, με διαμορφώσεις καθιστικών, κρήνης, χαμηλών φυτεύσεων και μικρού οικίσκου χώρων υγιεινής. Στις αρχές της δεκαετίας του 2000, στο κεντρικό τμήμα του οικοπέδου χωροθετήθηκε βιομηχανικό κτήριο. Η είσοδος στο οικόπεδο γίνεται μέσω μεταλλικής αυλόθυρας πλαισιωμένης από κτιστή όψη, εκατέρωθεν της εισόδου, που παραπέμπει σε τυπικό μαντρότοιχο αθηναϊκής αυλής των αρχών του περασμένου αιώνα.
Ο σχεδιασμός του Υπουργείου Πολιτισμού αφορά στη δημιουργία, εντός του κτηρίου, ιματιοθήκης με ατομικούς αυτοεξυπηρετούμενους φωριαμούς (lockers), επιπλέον χώρων υγιεινής και στη διαμόρφωση χώρου πολλαπλών χρήσεων με εκπαιδευτικό–πολιτιστικό χαρακτήρα για τους επισκέπτες. Οι νέες χρήσεις καταλαμβάνουν τον υφιστάμενο ενιαίο χώρο του κτηρίου, αλλά και τους υπάρχοντες διαμορφωμένους βοηθητικούς χώρους. Δημιουργείται και πωλητήριο του ΟΔΑΠ, ενώ στην είσοδο τοποθετείται μονάδα ελέγχου για τους επισκέπτες και τις αποσκευές τους. Ο χώρος πολλαπλών χρήσεων χωροθετείται στο πίσω τμήμα του κτηρίου, έχοντας αυτοτέλεια και εκμεταλλευόμενος το άνοιγμα της στέγης, με θέα προς την Ακρόπολη. Στις προτεινόμενες χρήσεις, βασική είναι αυτή της δημιουργικής απασχόλησης παιδιών ηλικίας μέχρι 12 ετών, που απευθύνεται σε γονείς που θέλουν να αφήσουν τα μικρότερα σε ηλικία παιδιά (ενδεικτικές ηλικίες 3-6 ετών) κατά την επίσκεψή τους στον αρχαιολογικό χώρο, είτε σε σχολεία (ενδεικτικές ηλικίες 6-12 ετών) από την Ελλάδα ή το εξωτερικό. Ο κεντρικός άξονας των διδακτικών-εκπαιδευτικών προγραμμάτων θα είναι αρχαιογνωστικός με έμφαση στους εγγύς αρχαιολογικούς χώρους. Το οικόπεδο μετατρέπεται σε υπαίθριο χώρο πολλαπλών χρήσεων, με εκπαιδευτικό και πολιτιστικό χαρακτήρα, ο οποίος θα μπορεί να λειτουργεί αυτόνομα είτε και σε σύνδεση με το κτήριο της Αρεοπαγίτου.