Στις 30 Αυγούστου 2013 δημοσιεύτηκε άρθρο της υπογράφουσας με τίτλο «Αποκατάσταση και επανάχρηση λιθόκτιστης οικίας στο Βόλο (πρώην οικία Χατζησταματίου). Μετατροπή σε κτίριο γραφείων του Υπουργείου Πολιτισμού και Τουρισμού».

Παρά τις επίμονες προσπάθειές μας, κατά τη διάρκεια της σύνταξης της μελέτης, δεν μπορέσαμε να εντοπίσουμε πριν από τη δημοσίευση έστω και μία φωτογραφία του κτίσματος (που ήταν τριώροφο κεραμοσκεπές με ημιϋπόγειο) στην αρχική του μορφή. Επομένως δεν ήταν δυνατή η πιστή μορφολογική αναπαράσταση των όψεων του τελευταίου δευτέρου ορόφου, ο οποίος είχε καταστεί επικίνδυνος και κατεδαφίστηκε έπειτα από τους σεισμούς του 1956. Οι όποιες –ακριβείς όπως αποδείχτηκε– προφορικές πληροφορίες για την αρχική μορφή του κτιρίου προέρχονταν από τον τελευταίο ιδιοκτήτη και κάτοικο του κτίσματος, Νίκο Χατζησταματίου, τον οποίο ευχαριστώ θερμά.

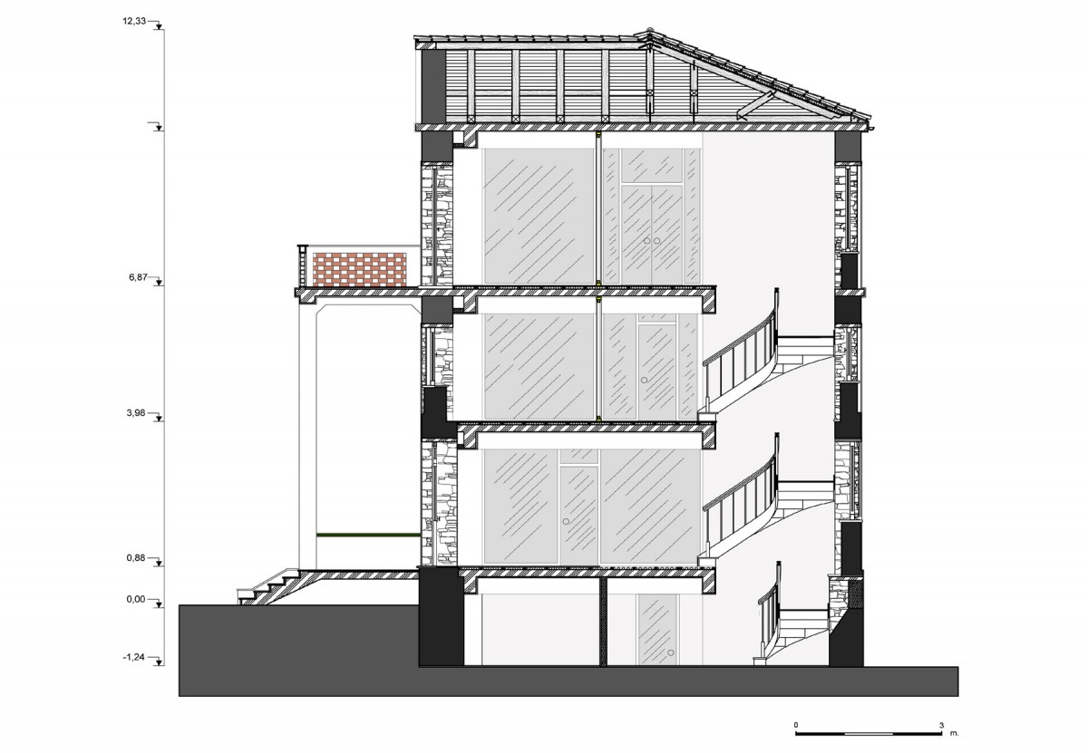
Αποφασίστηκε λοιπόν η αποκατάσταση των υπαρχόντων ορόφων του κτιρίου και η μη ανακατασκευή του τελευταίου δευτέρου ορόφου.

Το χειμώνα του 2013, ο συνάδελφος Δημήτρης Παλιούρας –στον οποίο εκφράζω τις θερμές μου ευχαριστίες– εντόπισε τυχαία στη σελίδα 231 του βιβλίου Το Αχιλλοπούλειο Νοσοκομείο Βόλου και στο κεφάλαιο «Αναμνήσεις των Εργαζομένων», φωτογραφία της οικίας στη διάρκεια του Β’ Παγκοσμίου Πολέμου, από το αρχείο της Νίκης Σαμαρά, στην οποία απεικονίζονται η νότια και η δυτική όψεις του κτιρίου στην αρχική τους μορφή (εικ. 1).

Κατόπιν τούτου, επειδή σήμερα έχουμε στη διάθεσή μας τα απαραίτητα μορφολογικά στοιχεία της αρχικής μορφής του κτιρίου στη νότια και την ανατολική όψη (εικ. 2, 3) και επειδή είναι σχεδόν με βεβαιότητα προβλέψιμη η αρχική του μορφή στη δυτική και τη βόρεια όψη (εικ. 4, 5), προτείνεται η συμπλήρωση της μελέτης στο κεφάλαιο «Πρόταση επανάχρησης» με την ανακατασκευή του δευτέρου ορόφου και τις απαραίτητες μετατροπές στην εσωτερική διαμόρφωση των κατόψεων, καθώς και ο επαναπροσδιορισμός των χρήσεων στους ορόφους του κτίσματος.

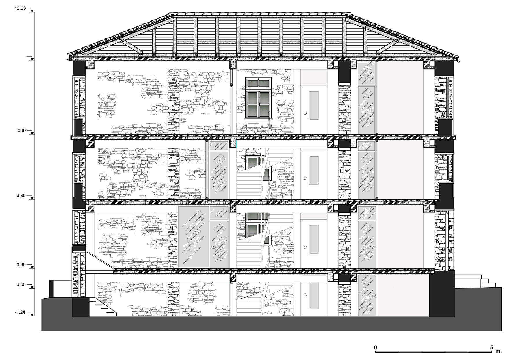
Από τη φωτογραφία που απεικονίζει το κτίσμα στην αρχική του μορφή, διαπιστώνεται ότι ο τελευταίος όροφος που κατεδαφίστηκε ήταν λιθόκτιστος με μπαλκόνι στη νότια όψη σε μήκος  7,80 μ., όσο δηλαδή και το μήκος της προεξοχής. Στο μπαλκόνι, πλάτους περίπου 2,5 μ., το οποίο στηριζόταν σε τέσσερα υποστηλώματα, οδηγούσαν τρεις μπαλκονόπορτες συμμετρικές ως προς την όψη. Στη στέγη του κτιρίου και στο κέντρο της νότιας πλευράς της υπήρχε αέτωμα ίσο με το μήκος της προεξοχής της νότιας όψης. Το στηθαίο του μπαλκονιού αποτελούνταν από κολονάκια, ανάμεσα στα οποία υπήρχαν εμφανή τούβλα με κενά.

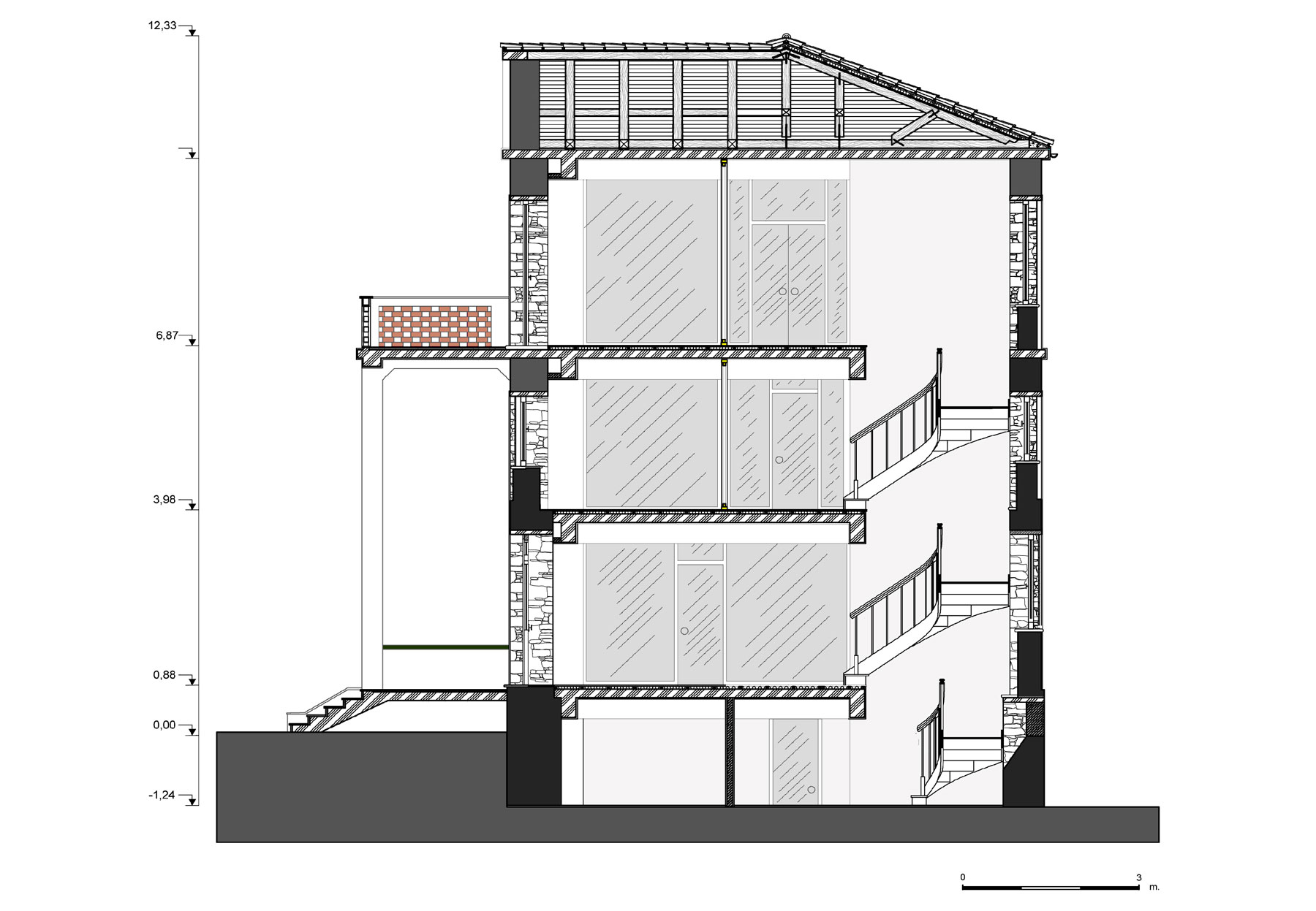
Επειδή το κτίριο προορίζεται για δημόσια χρήση, επιβάλλεται η αύξηση του ύψους του πρώτου ορόφου που σήμερα είναι 2,10 μ.  Επίσης η επαναφορά του ύψους τόσο του πρώτου όσο και του δευτέρου ορόφου προσεγγιστικά στις αρχικές τους διαστάσεις και, όσο είναι δυνατόν, η διατήρηση των αρχικών υψομετρικών αναλογιών του κτιρίου (εικ. 6, 7), όπως αυτές απεικονίζονται στην αρχική του πρόσοψη. Η στέγη θα ανακατασκευαστεί πλήρως (εικ. 8), θα είναι τετράρριχτη, ξύλινη με ζευκτά αναρτημένου τύπου, με μόνωση και επικάλυψη με κεραμίδια γαλλικού τύπου. Το αέτωμα θα είναι από οπλισμένο σκυρόδεμα, καλυμμένο με τριφτό σοβά και επίχρισμα χρώματος γκρι ανοιχτού.

Το μπαλκόνι θα ανακατασκευαστεί στην αρχική του μορφή, ενώ οι κολόνες έδρασής του θα είναι από οπλισμένο σκυρόδεμα καλυμμένο με τριφτό σοβά και επιχρίσματα χρώματος γκρί ανοιχτού. Το δάπεδο του μπαλκονιού θα έχει την αρχική του μορφή (εικ. 9), όπως την περιέγραψε ο Ν. Χατζησταματίου. Δάπεδο ίδιας μορφής θα τοποθετηθεί και στο στεγασμένο κατώφλι της νότιας εισόδου.

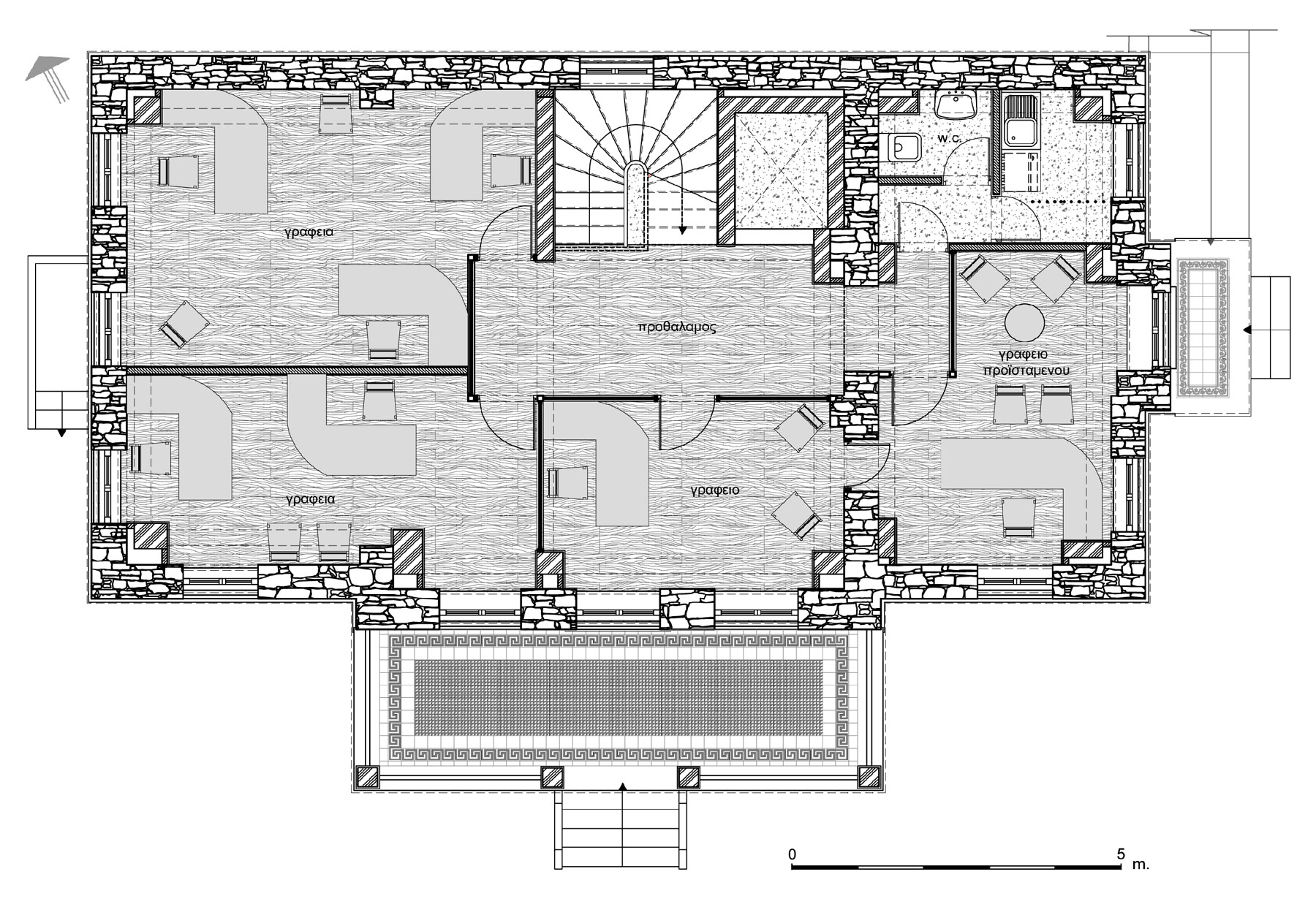
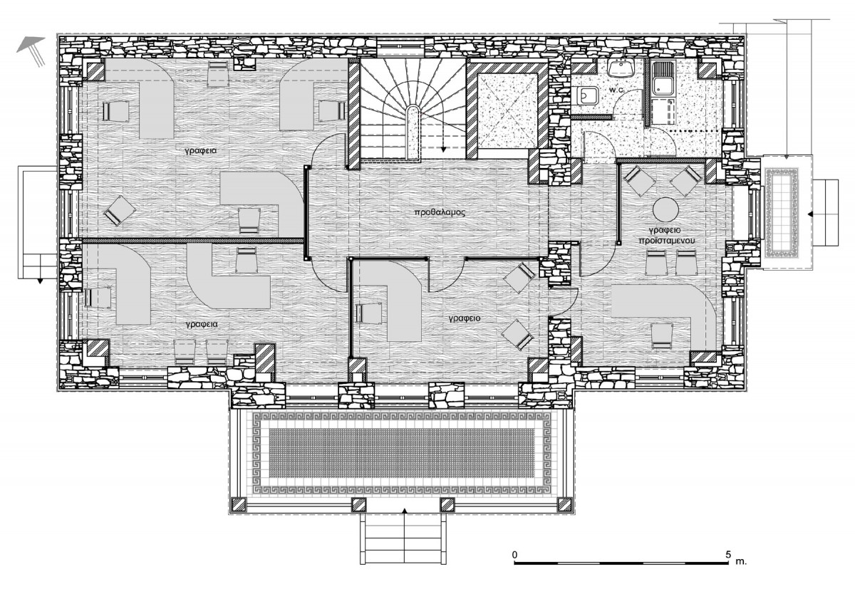
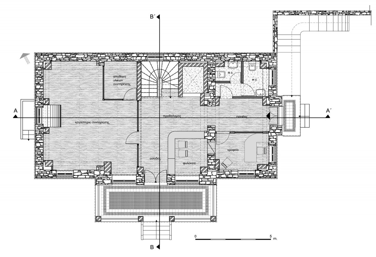
Η ανακατασκευή του τελευταίου ορόφου επέβαλε μια σειρά αλλαγών στο σχεδιασμό των κατόψεων και τη διαρρύθμιση των εσωτερικών χώρων σε σχέση με τη δημοσιευθείσα πρόταση.

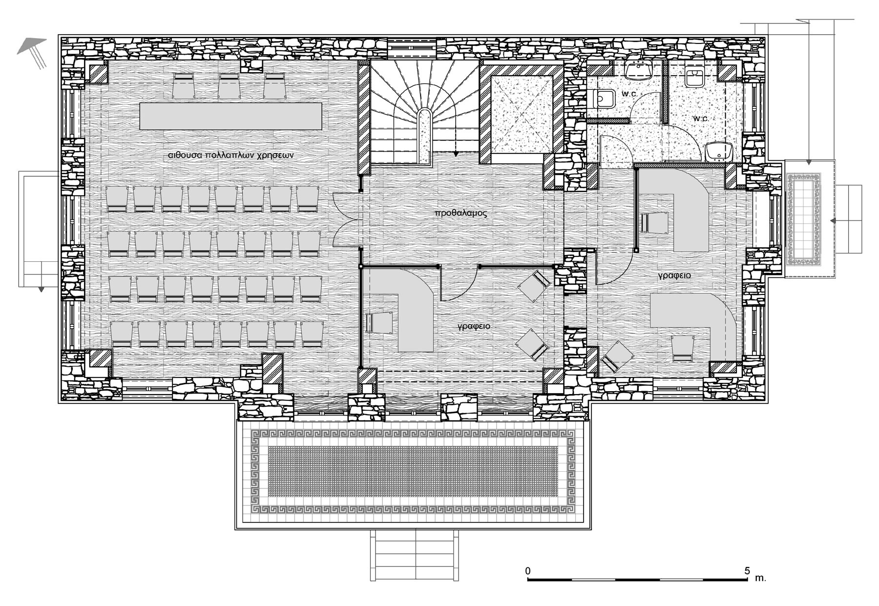
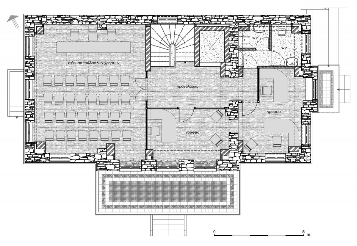
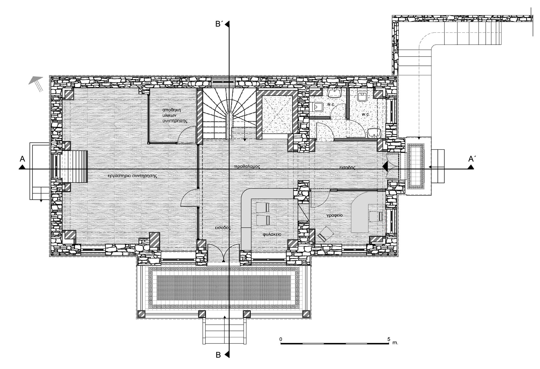
Στο ημιϋπόγειο (εικ. 10), λόγω του χαμηλού ύψους προβλέπονται αποθηκευτικοί χώροι, η βιβλιοθήκη και χώροι τεχνολογικών υποδομών. Στο ισόγειο (εικ. 11), οι χώροι υποδοχής, η γραμματεία, το φυλάκιο και το εργαστήριο συντήρησης αρχαιοτήτων. Στον πρώτο όροφο (εικ. 12) γραφεία  προσωπικού, ενώ στον δεύτερο όροφο (εικ. 13) γραφεία και αίθουσα πολλαπλών χρήσεων.

 

Θάλεια Μακρή-Σκοτινιώτη

Αρχιτέκτων και Τοπογραφος Μηχανικός