O Αριστοτέλης Ζάχος υπήρξε δεσπόζουσα μορφή της ελληνικής αρχιτεκτονικής των ετών 1908-1940, αλλά και νεωτεριστής δημιουργός ευρωπαϊκού διαμετρήματος. Όμως, παρά την ευρύτατη αναγνώρισή του στα χρόνια του Μεσοπολέμου, δεν έχει πάρει ακόμη τη θέση που του αξίζει στην αρχιτεκτονική ιστορία της χώρας του και της Ευρώπης. Σκοπός αυτού του άρθρου είναι η ανάδειξη του πρωτοποριακού ρόλου του Αριστοτέλη Ζάχου και της νεωτερικότητας του αρχιτεκτονικού έργου του.

Ο αρχιτέκτων γεννήθηκε στην τουρκοκρατούμενη Καστοριά το 1871. Ήταν ο τρίτος από τους πέντε γιους του δασκάλου και εμπόρου Αθανασίου Ζάχου από τη Σιάτιστα και της Τρυ­γόνας Παπαδημητρίου. Οι Ζάχοι της Σιάτιστας, που τον 18ο αιώνα τους βρίσκουμε στη Βιέννη να ασχολούνται με το γουνεμπόριο, ήσαν βλαχικής καταγωγής από τα Βελεσσά, το σημερινό Τίτο Βέλες της πΓΔΜ. Είχαν έντονη κοινωνική και πατριωτική δράση στη Μακεδονία και στον Βόλο. Ο πρωτότοκος γιος του Αθανασίου, ο τραπεζικός Αργύρης συνεργάστηκε με τον Ίωνα Δραγούμη στο Μοναστήρι, συμπαραστάθηκε στον Παύλο Μελά και υπήρξε μέλος του Εκτελεστικού της «Οργάνωσης Θεσσαλονίκης» (1906-1908) υπό τον λόγιο αξιωματικό Αθανάσιο Σουλιώτη, ηγετική μορφή του ένοπλου Μακεδονικού Αγώνα από το 1906 έως το 1908 (σημ. 1).

Για την κατανόηση της σχέσης του Αριστοτέλη Ζάχου με τον αστικό δημοτικισμό και την πόλη του Βόλου, στην οποία πραγματοποίησε τρία κορυφαία έργα του, είναι ανάγκη να αναφερθούν και τα εξής. Ο μεγαλέμπορος Ιωάννης Ζά­χος, αδελφός του πατέρα του, ζούσε με τα οκτώ παιδιά του στον Βόλο και χρημάτισε πρόεδρος του Εμπορικού Συλλόγου της πόλης για πολλά χρόνια. Ο γιος του Κώστας, εκδότης της σοσιαλιστικής εφημερίδας Εργάτης του Βόλου που κυκλοφόρησε από το 1907 ώς το 1911 στη δημοτική γλώσσα, υπήρξε θερμός υποστηρικτής της πρωτοποριακής εκπαιδευτικής προσπάθειας του δημοτικιστή Αλέξανδρου Δελμούζου στο Ανώτερο Δημοτικό Παρθεναγωγείο του Βόλου.

Ο Αριστοτέλης τελείωσε το γυμνάσιο στο Μοναστήρι της Μακεδονίας, όπως και οι τέσσερις αδελφοί του, που έκαναν όλοι τους ανώτατες σπουδές. Από τους αδελφούς του αρχιτέκτονα διακρίθηκαν ιδιαίτερα ο επιχειρηματίας Ζάχος Ζάχος και ο διπλωμάτης-πολιτικός Αριστείδης (σημ. 2).

Σπουδές και επαγγελματικό ξεκίνημα στη Γερμανία

Γεννημένος καλλιτέχνης, με έντονη προσωπικότητα, ελεύθερο πνεύμα και εξαιρετικά ευνοημένο παρουσιαστικό, ο Αριστοτέλης Ζάχος θα εκδηλώσει νωρίς την κλίση του στην αρχιτεκτονική. Σπούδασε εργαζόμενος ταυτόχρονα κατά τη δεκαετία του 1890, μια περίοδο μεγάλων αλλαγών για την τέχνη του στις αρχιτεκτονικές σχολές των σημαντικότερων Πολυτε­χνείων της νότιας Γερμανίας: των Πολυτεχνείων του Μονάχου (1889-1895), της Στουτγάρδης (1896) και της Καρλσρούης (1899-1901). Εκεί έλαβε στέρεη παιδεία από κορυφαίους αρχιτέκτονες και θεωρητικούς: στο Μόναχο από τον Friedrich von Thiersch (1852-1921) και στην Καρλσρούη από τον αντιδογματικό αναστηλωτή μνημείων Karl Schäfer (1844-1908), ο οποίος υποστήριζε τη διαχρονική αξία των βιοτεχνικών παραδό­σεων του Μεσαίωνα, αλλά κυρίως από τον κοσμοπολίτη αρχιτέκτονα, θεωρητικό και αρχαιογνώστη Josef Durm (1837-1919), λάτρη της ιταλικής Αναγέννησης και της αρχαίας Ελλάδας (σημ. 3). Εκτός από τη θεωρητική κατάρτιση, ο Ζάχος είχε την τύχη να αρχίσει την επαγγελματική σταδιοδρομία του υπό ιδεώδεις συνθήκες. Το 1901 ο Durm, εκτιμώντας τις ικανότητες του μαθητή του, θα τον προσλάβει ως πρώτο του βοηθό στην οριστική μελέτη και επίβλεψη σημαντικών δημοσίων κτηρίων του δου­κάτου της Βάδης, όπως ήταν η περίφημη Πανεπιστημιακή Βιβλιοθήκη της Χαϊδελβέργης (1897/1900-1905), το Ανώτατο Δικαστήριο της Καρλσρούης (1899-1902) και το Γυ­μνάσιο του Freiburg (1900-π. 1907). Στη Βιβλιοθήκη της Χαϊδελβέργης, ενός εμβληματικού κτιρίου εκλεκτικιστικής τεχνοτροπίας με νεωτερικά στοιχεία Jugendstil, η συμβολή του Ζάχου υπήρξε ουσιώδης (σημ. 4).

Η επαγγελ­ματική αυτή ενασχόληση δεν επέτρεψε στον Ζάχο να αποκτήσει το δίπλωμα του αρχιτέκτονα, πράγμα αρκετά συνηθισμένο τότε, αλλά και αργότερα, αφού πολλές προσωπικότητες της ευρωπαϊκής αρχιτεκτονικής όχι μόνο έκτιζαν αλλά και δίδασκαν χωρίς πτυχίο.

Ως σπουδαστής και εργαζόμενος στη Γερμανία την περίοδο 1889-1905 ο Αριστοτέλης γνώρισε από πρώτο χέρι τα νέα ρεύματα αυτής της χώρας, η οποία πρωταγωνιστούσε τότε σε ό,τι κυρίως τον ενδιέφερε: δηλαδή στην αρχιτεκτονική, τις εφαρμοσμένες τέχνες, την πολεοδομία και τη μέριμνα των μνημείων. Δέχθηκε την επί­δραση του Jugendstil, ενός νεωτερικού ρεύματος που διευκόλυνε τη συνεργασία αρχιτεκτονικής και εφαρμοσμένων τεχνών για τη δημιουργία ολικών έργων τέχνης. Κυρίως όμως επηρεάστηκε από τις μεταρρυθμιστικές κινήσεις της εποχής με όραμα κοινωνικό, πολιτισμικό και αισθητικό. Τις κινήσεις αυτές γέννησε η αντίθεση προς τα δεινά της βιομηχανικής κοινωνίας και το αυξανόμενο ενδιαφέρον πρωτοπόρων δημιουργών για την αυτόχθονα παράδοση και τον Μεσαίωνα. H επιστροφή στη φύση και στις αξίες της παράδοσης ως μέσον αλλαγής αισθητικών κριτηρίων αλλά και ως διαδικασία αυτοπροσδιορισμού —πολιτισμικού ή εθνικού—, ήταν μια κίνηση του τέλους του 19ου και των αρχών του 20ού αιώνα, επηρεασμένη από τη φιλοσοφία της ιστορίας και την αισθητική του Johann Gottfried von Herder (σημ. 5). Οι ιστορικές συνθήκες που ευνόησαν αυτή την κίνηση στην Ευρώπη ήταν o ανταγωνισμός των μεγάλων αποικιοκρατικών της δυνάμεων και οι προοπτικές ανάδυσης ή ολοκλήρωσης εθνών-κρατών που δημιουργούσε η αποσύνθεση των πολυεθνικών αυτοκρατοριών, όπως ήταν η Οθωμανική και η Αυστροουγγρική.

Ο Ζάχος πρέπει επίσης να είχε υπόψη το τρίτομο βιβλίο του μεταρρυθμιστή αρχιτέκτονα Hermann Muthesius (1861-1927) με θέμα την παράδοση της αγγλικής κατοικίας και την ανάγκη αναβίωσης των αξιών της στο σχεδιασμό του σύγχρονου αστικού σπιτιού. Στις αξίες αυτές περιλαμβάνεται η απλότητα και λειτουργικότητα που εναρμονίζονταν απόλυτα με βασικές αρχές του μοντερνισμού. Ο Muthesius ήταν ιδρυτικό μέλος του Deutscher Werkbund, προδρόμου του Bauhaus (σημ. 6).

Ο Ζάχος είχε τέλος την τύχη να βρίσκεται στο Μόναχο την εποχή του διαγωνισμού για την επέκταση της βαυαρικής πρωτεύουσας (1893) και της εκπόνησης του πολεοδομικού σχεδίου της από τον μεταρρυθμιστή αρχιτέκτονα Theodor Fischer (σημ. 7).

Ο Αριστοτέλης Ζάχος στην Ελλάδα

Προσωπικότητα και κοινωνικό περιβάλλον του αρχιτέκτονα

Με αυτά τα εφόδια ο Ζάχος επιστρέφει πάνοπλος στην Ελλάδα για να αναδειχθεί ταγός της αρχιτεκτονικής της μεταρρύθμισης. Στην πολυτάραχη όμως περίοδο 1905-1922, η ισχυρή προσωπικότητα, ο αντικομφορμισμός και η οικογενειακή του παράδοση θα τον εμπλέξουν μοιραία σε ιστορικά γεγονότα που δυσκόλεψαν τη σταδιοδρομία του. Ο πρωτοπόρος αρχιτέκτων ήταν παρών στους αγώνες της ελληνικής αλυτρωτικής πολιτικής από τα φοιτητικά του χρόνια. Δεν δίστασε να διακόψει τις σπουδές του για να πάρει μέρος ως εθελοντής στον άτυχο Ελληνοτουρκικό Πόλεμο του 1897 και να στρατευθεί στο όραμα της ελληνικής Μακεδονίας ως μέλος μυστικών οργανώσεων από το 1906 έως το 1913.  Το 1912, λίγο μετά την έκρηξη του Α΄ Βαλκανικού Πολέμου, φυλακίζεται από το οθωμανικό καθεστώς με την κατηγορία της κατασκοπείας και σώζεται χάρη στην παρέμβαση του Γερμανού πρέσβη της Κωνσταντινούπολης, την οποία προκάλεσε το ενδιαφέρον της βασίλισσας Σοφίας. Το γεγονός αυτό αλλά και η γερμανική αρχιτεκτονική παιδεία του θα τον οδηγήσουν μοιραία στο ένα από τα δύο αντιμαχόμενα στρατόπεδα της πολιτικής ζωής του καιρού του, την αντιβενιζελική παράταξη. Έτσι, ο αρχιτέκτων θα γευτεί τις πίκρες του εθνικού διχασμού. Το καλοκαίρι του 1917 αυτοεξορίζεται ένα χρόνο στην Άρτα, έχοντας ήδη χάσει τη θέση του προϊσταμένου των τεχνικών υπηρεσιών του Δήμου Αθηναίων (σημ. 8).

Η καλλιτεχνική ιδιοσυγκρασία και θυμοσοφία του πολυταξιδεμένου αρχιτέκτονα, ο ευθύς και πνευματώδης χαρακτήρας, η έμφυτη κοινωνικότητα και η γοητεία που ασκούσε στις γυναίκες τον έκαναν δημοφιλή όπου και αν βρισκόταν. Ο Αριστοτέλης Ζάχος θα κυκλοφορεί παντού, συνδεόμενος άνετα τόσο με απλούς ανθρώπους όσο και με σημαντικές προσωπικότητες της περιόδου 1900-1939, όπως ήταν ο Ίων Δραγούμης, o ρέκτης δήμαρχος του Βόλου Κώστας Γ. Καρτάλης, λόγιοι εκδότες —ο Γεώργιος Βλάχος της εφημερίδας Η Καθημερινή, ο Κίμων Μιχαηλίδης του περιοδικού Παναθήναια και ο Γεράσιμος Βώκος του περιοδικού Ο Καλλιτέχνης—, ζωγράφοι και γλύπτες του αντιακαδημαϊκού Συνδέσμου Ελλήνων Καλλιτεχνών (1910 κ.ε.). Από το 1920 συνδέθηκε στενά με τη μεγάλη λαογράφο Αγγελική Χατζημιχάλη (1895-1965) και ανθρώπους του κύκλου της, στον οποίο ανήκαν οι σημαντικότεροι φίλοι και εργοδότες του αρχιτέκτονα: ο διαπρεπής βυζαντινολόγος, καθηγητής του Πανεπιστημίου και ακαδημαϊκός Γεώργιος Σωτηρίου, ο λογοτέχνης, τεχνοκριτικός και ακαδημαϊκός Ζαχαρίας Παπαντωνίου, ο φιλότεχνος ιδρυτής της Λαϊκής Τράπεζας Διονύσιος Λοβέρδος, ο διπλωμάτης Αλέξιος Πάλλης, και οι μητροπολίτες Ιωαννίνων Σπυρίδων (Σπυρίδων Βλάχος) και Κορίνθου Δαμασκηνός (Δημήτριος Παπανδρέου), οι οποίοι διετέλεσαν προκαθήμενοι της Εκκλησίας της Ελλάδος κ.ά. (σημ. 9).

Oδοιπορικό αυτογνωσίας, το μανιφέστο του αρχιτεκτονικού δημοτικισμού και πρώτα έργα, 1906-1923

Τα χρόνια αυτά, παράλληλα με την επαγγελματική δραστηριότητά του, ο Ζάχος άρχισε να περιηγείται την Ελλάδα με τη φωτογραφική μηχανή, τα μολύβια, τις πένες και το χρωστήρα του για να μελετήσει την αυτόχθονα παράδοση και τα βυζαντινά μνημεία της. Και εδώ χρειάζεται να τονιστεί η ιδεολογική σχέση των αναζητήσεων του  Ζάχου με τα νέα ρεύματα της εποχής, όπως ήταν το ενισχυμένο ενδιαφέρον των δημοτικιστών για το Βυζάντιο, το αγγλικό κίνημα Τέχνες και Χειροτεχνία (Arts and Crafts) και τα μεταρρυθμιστικά κινήματα της Γερμανίας. Επιπλέον, το ενδιαφέρον για το Βυζάντιο δεν ήταν μόνο ελληνική, αλλά και ευρωπαϊκή τάση που κορυφώθηκε τις παραμονές των Βαλκανικών Πολέμων, καθώς είχε σχέση με το Ανατολικό Ζήτημα, μέρος του οποίου ήταν το Μακεδονικό Ζήτημα.

Οι καρποί της περιήγησης του Αριστοτέλη Ζάχου υπήρξαν πολυσήμαντοι και γόνιμοι. Ο Ζάχος ήταν ο πρώτος που αμφισβήτησε την ελληνικότητα του νεοκλασικισμού και τη δυτικότροπη μορφοκρατία της αστικής αρχιτεκτονικής του τόπου του. Στη λαϊκή αρχιτεκτονική παράδοση και στο παρελθόν της —βυζαντινό και παλαιοχριστιανικό— ο Ζάχος αναζητά τη γνήσια έκφραση της ψυχής του ελληνικού λαού. Από τη βαθιά αυτή δεξαμενή αντλεί συναισθηματική δύναμη, πρότυπα και εκφραστικά μέσα για την αρχιτεκτονική μεταρρύθμισή του, η οποία προαναγγέλλεται με το άρθρο του «Λαϊκή Αρχιτεκτονική» που δημοσιεύτηκε στο περιοδικό Ο Καλλιτέχνης τον  Αύγουστο του 1911. Σε αυτό το πρώτο μανιφέστο του αρχιτεκτονικού δημοτικισμού, ο Zάχος υιοθετεί την ιδέα της συνέχειας του ελληνικού πολιτισμού των Ζαμπέλιου, Παπαρρηγόπουλου, Δραγούμη και των δημοτικιστών. Συνδέει τη λαϊκή παραδοσιακή αρχιτεκτονική με την αρχιτεκτονική του Βυζαντίου, την οποία θεωρεί ως εξέλιξη της αρχαίας ελληνικής όσον αφορά την κατοικία (σημ. 10). Παραλείπει βέβαια την αρχιτεκτονική της Τουρκοκρατίας, αφού το μανιφέστο του κυκλοφορεί έναν μόλις χρόνο πριν η Ελλάδα και οι Βαλκάνιοι σύμμαχοί της έλθουν σε σύρραξη με την καταρρέουσα Οθωμανική Αυτοκρατορία για τη διανομή των ευρωπαϊκών εδαφών της. Για τον Ζάχο το λαϊκό παραδοσιακό σπίτι και αρχοντόσπιτο αποτελούν υπόδειγμα πρακτικού πνεύματος και αισθητικής για τη δημιουργία μιας αυθεντικά σύγχρονης κατοικίας με ελληνικό χαρακτήρα (σημ. 11). Η σχέση του Ζάχου με τη λαϊκή τέχνη και αρχιτεκτονική δεν υπήρξε, όπως εύστοχα σημειώνει ο Ζαχαρίας Παπαντωνίου, ένας απλός «πριμιτιβίσμ», μια αισθητική συμπάθεια για τα έργα της λαϊκής αφέλειας (σημ. 12). Με τον πρακτικό νου και την επαγγελματική εμπειρία του, ο αρχιτέκτων προχώρησε πολύ πιο πέρα από το φολκλορισμό αυτών των χρόνων, αλλά και από τον μεταγενέστερο, στοχαστικό αισθαντισμό του Δημήτρη Πικιώνη (1887-1968).

Το έργο της περιόδου 1906-1922, το οποίο αποτελεί προοίμιο της αρχιτεκτονικής μεταρρύθμισης του Ζάχου, δεν θα μας απασχολήσει εδώ καθώς παρουσιάστηκε σε πρόσφατο βιβλίο της γράφουσας (σημ. 13).

Το μεταρρυθμιστικό έργο του Μεσοπολέμου

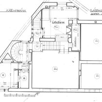
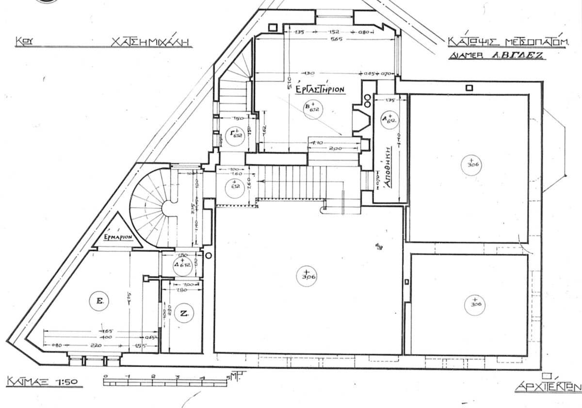
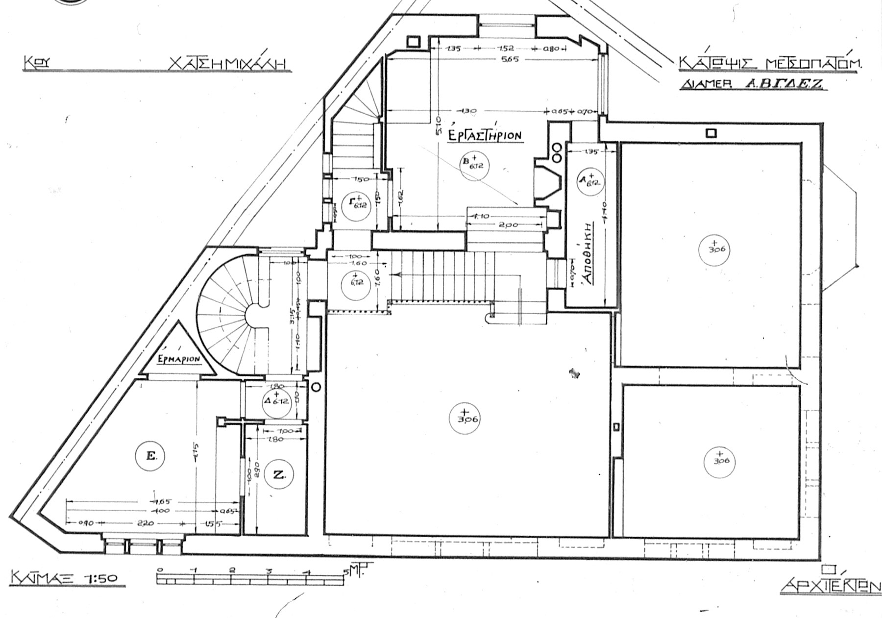
Η τελευταία και σημαντικότερη περίοδος της αρχιτεκτονικής δραστηριότητας του Ζάχου περιλαμβάνει το μεταρρυθμιστικό έργο του στη μονοκατοικία και τη ναοδομία. Οι μονοκατοικίες και οι εσωτερικοί χώροι του αρχιτέκτονα αποτελούν πρωτότυπες συνθέσεις νεωτερικών και παραδοσιακών στοιχείων. Σχεδιασμένες για φιλότεχνους και εύπορους αστούς, έχουν όλες τις σύγχρονες ανέσεις, χωρίς την τυπολογική και μορφολογική ομοιομορφία των ριζοσπαστικά μοντέρνων σπιτιών. Τα τρία σημαντικότερα δείγματα της δουλειάς του σε αυτό το θέμα είναι το σπίτι της Αγγελικής Χατζημιχάλη στην Πλάκα —σήμερα Δημοτικό Κέντρο Λαϊκής Τέχνης και Παράδοσης— (1924-1931), το κατεδαφισμένο σπίτι-εργαστήριο του αρχιτέκτονα στο Βατραχονήσι του Μετς (1928-1929) και η εξοχική κατοικία του τραπεζίτη Λοβέρδου στη Βαρυμπόμπη (1928-1930). Πρόκειται για ολικά έργα τέχνης με διάκοσμο εμπνευσμένο από τη λαϊκή παράδοση για τον οποίο χρησιμοποιήθηκαν εξαίρετοι τεχνίτες ξυλογλυπτικής, μεταλλοτεχνίας και ψηφιδωτών, καθώς και εκλεκτά βιοτεχνικά προϊόντα μεταλλοτεχνίας και κεραμικής του Μεσοπολέμου. Η επανερμηνεία τυπολογικών στοιχείων της παραδοσιακής κατοικίας στον βορειοελλαδικό χώρο, όπως είναι  ο δοξάτος, ο σημαντικός ρόλος της τραπεζαρίας και του τζακιού, οι πολύτιμες συλλογές έργων λαϊκής τέχνης σε συνδυασμό με τη λειτουργικότητα και το πρακτικό πνεύμα της σύγχρονης αρχιτεκτονικής, είναι τα χαρακτηριστικά γνω­ρίσματα των σπιτιών της Χατζημιχάλη και του αρχιτέκτονα. Το σπίτι αυτό κατεδαφίστηκε δυστυχώς για ρυμοτομικούς λόγους στα τέλη της δεκαετίας του 1950, με αποτέλεσμα να χαθεί το μεγαλύτερο μέρος των αρχιτεκτονικών σχεδίων του Ζάχου (σημ. 14).

Η στάση του Αριστοτέλη Ζάχου απέναντι στο Μοντέρνο Κίνημα κάθε άλλο παρά εχθρική ή αδιάφορη ήταν. Το 1934, σε ηλικία 63 ετών, χρησιμοποιεί τον διεθνή κυβιστικό κώδικα για την εξωτερική διάπλαση της μονοκατοικίας Πετυχάκη στο Ψυχικό. Το εξοχικό σπίτι του Διονυσίου  Λοβέρδου στη Βαρυμπόμπη (1928-1929) ήταν ένας δημιουργικός συγκερασμός της κυκλαδίτικης κυρίως παράδοσης με το σύγχρονο πνεύμα, ο οποίος άσκησε μεγάλη επίδραση (σημ. 15).

Η ναοδομική μεταρρύθμιση του Αριστοτέλη Ζάχου

Ακόμη σημαντικότεροι υπήρξαν οι καρποί της μεταρρυθμιστικής προσπάθειας του αρχιτέκτονα στη ναοδομία. Αυτό έγινε στους τρεις ναούς του Βόλου —τον Άγιο Νικόλαο (1921-1932), τον Άγιο Κωνσταντίνο (1930-1936) και τη Μεταμόρφωση του Σωτήρος (1930-1936)—, που ανεγέρθηκαν με δημοτική πρωτοβουλία, και στο ναό του Αποστόλου Παύλου της Κορίνθου (περί το 1933-1935), ο οποίος οφείλεται στην πρωτοβουλία και στον έρανο του τότε μητροπολίτη Δαμασκηνού. Δυστυχώς, η πρόταση του αρχιτέκτονα να αγιογρα­φηθούν οι vαοί του Βόλου από διακεκριμένους ζωγράφους —Κόντογλου, Γιολδάση, κ.λπ.—, να αποφευχθεί ο φωτισμός τους με πολυελαίους κ.ά. δεν εφαρμόστηκε παρά σε πολύ μικρή κλίμακα (σημ. 16).

Στους ναούς του Αγίου Νικολάου και της Μεταμόρφωσης στον Βόλο ο Ζάχος ήταν δε­σμευμένος από τα υπάρχοντα θεμέλια, τα οποία είχαν κατασκευαστεί με σχέδια άλλων αρχιτεκτόνων. Η σύνθεση του Ζάχου στον πρώτο ναό με το υπάρχον υψιτενές κωδωνοστάσιο και την πρόβλεψη περίστωου αιθρίου, φιάλης και ελληνικού φυτικού διακόσμου δεν ολοκληρώθηκε. Η κτιριολογική λύση του αποτελεί πρωτότυπη σύνθεση εμπνευσμένη από τρουλαίους σταυροειδείς ναούς της μεσοβυζαντινής περιόδου με τη γραφική πλινθοπερίκλειστη τοιχοποιία. Ο τρούλος πλαισιώνεται από τους τέσσερις τυφλούς ημισφαιρικούς θόλους που καλύπτουν τα γωνιακά διαμερίσματα του ναού και τον τρουλίσκο που επιστέφει το χώρο πίσω από την κεντρική πύλη. Η μελέτη αγιογράφησης τρούλου και το σχέδιο του ψηφιδωτού της πύλης φιλοτεχνήθηκαν από τον Αγήνορα Αστεριάδη.

Λιτότερος και πιο πρωτότυπος ήταν ο ναός της Μεταμόρφωσης του Σωτήρος. Πρόκειται για σταυροειδή εγ­γεγραμμένο με πέντε τρούλους και κεραίες με ημικυλινδρικές κεραμοσκεπές, κατα­σκευασμένο από οπλισμένο σκυρόδεμα και επιχρισμένη τοιχοποιία. Οι ημικυλινδρικές στέγες των κε­ραιών συνταιριάζονται δυναμικά με τους τρούλους και τις υπόλοιπες στέγες, εκφράζονται με σαφή­νεια στα κεντρικά καμπύλα αετώματα των όψεων και εναρμονίζονται με τα μεγάλα τρίλοβα παράθυρα και τις μνημειώδεις εισόδους των τριών πλευρών, καθώς και με την ημικυκλική κόγχη του ιερού. Τα ρα­δινά παράθυρα —μονόλοβα, δίλοβα, τρίλοβα και τετράλοβα— με τα γραφικά τοξωτά τους υπέρθυρα από λαξευτές πέτρες και λεπτά τούβλα, τα ιδιότυπα κιονοστήρικτα θυρώματα της βορινής και νότιας όψης, οι ωραίες αναλογίες της στοάς της κύριας εισόδου με τα τρία τόξα και ο καλαίσθη­τος μαρμάρινος διάκοσμος ελαφρύνουν τη στιβαρή εξωτερική εμφάνιση του ναού. Μία από τις κύριες αρετές του ναού της Μεταμόρφωσης είναι η δι­αύγεια και ευρυχωρία του εσωτερικού χώρου, εμπνευσμένου από κορυφαία βυζαντινά μνημεία, όπως είναι λ.χ. ο κεντρικός χώρος της νέας Αγίας Ειρήνης στην Κωνσταντινούπολη. Ο ναός αγιογραφήθηκε από τον αξιόλογο ζωγράφο Κώστα Γκέσκο.

Τον καλύτερο του εαυτό ο Αριστοτέλης Ζάχος θα μας τον δώσει στις δύο τελευταίες μεγάλες του εκκλησίες, που αποτελούν το ρέκβιεμ του. Εμπνευσμένος από παλαιοχριστιανικά κυρίως πρότυπα, όπως είναι η Αχειροποίητος της Θεσσαλονίκης, ο ναός του Αγίου Κωνσταντίνου υπερέχει των δύο άλλων εκκλησιών του Ζάχου στον Βόλο. Πρόκειται για τρίκλιτη βασιλική με υπερώο, που έχει στοές στη μεσημβρινή και στη δυτική όψη με κιονοστήρικτες τοξοστοιχίες και μεγάλη ημικυκλική κόγχη, την οποία ο Ζάχος περιβάλλει με χαμηλό διάδρομο για να λύσει το πρόβλημα της επικοινωνίας διακονικού και πρόθεσης. Είναι κατασκευασμένη από οπλισμένο σκυρόδεμα, επενδεδυμένο εξωτερικά με ωραία λιθοδομή και έχει εξαιρετικά επιμελημένες λεπτομέρειες. Ο εσωτερικός χώρος, παρά την αντι­κατάσταση των ξύλινων ζευκτών της μελέτης Ζάχου με μιμήσεις τους από μπετόν αρμέ και τις μεταγε­νέστερες διακοσμητικές αυθαιρεσίες, κάνει εξαιρετική εντύπωση με τις ωραίες αναλογίες και τον άπλετο φωτισμό του κεντρικού κλίτους. Το σχέδιο ψηφιδωτού της Πλατυτέρας ναού φιλοτεχνήθηκε από τον Αγήνορα Αστεριάδη.

Η βασιλική αυτή του Ζάχου, χάρη στην καθαρότητα και τη δυ­ναμική σύνθεση των όγκων στους οποίους δεσπόζει το υψιτενές κωδωνοστάσιο, τις ωραίες αναλογίες, τη γραφικότητα των υλικών και τις ευανάγνωστες αναφορές της σε παλαιοχριστιανικά μνημεία, άρεσε πάντα σε όλους. Με τον Άγιο Κωνσταντίνο του Βόλου ο Ζάχος δημιούργησε ένα σημαντικό έργο της σύγχρονης ελλαδικής ναοδομίας. Εκτός από την αρχιτεκτονική αξία του ναού, η κατασκευή του δίπλα στη θάλασσα υπήρξε ένα πρωτοποριακό τεχνικό έργο. Τη δυσχερέστατη θεμελίωση ανέλαβε ελβετική εταιρεία, η οποία ενίσχυσε το έδαφος με δωδεκάμετρους στύλους από οπλισμένο σκυρόδεμα.

Η τρουλαία βασιλική του Αποστόλου Παύλου στην Κόρινθο αποτελεί το νεωτερικότερο εκκλησιαστικό αρχιτεκτόνημα του Ζάχου. Σχεδιάστηκε την ίδια εποχή με τις εκκλη­σίες του Βόλου ως μέρος μιας μεγάλης αστικής σύνθεσης, άρχισε να κτίζεται το 1935, εγκαινιάστηκε το 1937, αλλά αποπερατώθηκε μετά από πολλά χρόνια. Η κατασκευή έγινε από οπλισμένο σκυρόδεμα και επιχρισμένη τοιχοποιία. Οι χώροι στε­γάστηκαν με δώματα, εκτός από τον τρούλο, την ημικυκλική κόγχη του ιερού και το κωδωνοστάσιο, που καλύφθηκαν με κεραμίδια. Στον Απόστολο Παύλο ο αρχιτέκτων καινοτόμησε, συνδυάζοντας ευ­ρηματικά τα πλεονεκτήματα των βασιλικών με εκείνα των τρουλαίων σταυροειδών ναών και με τα σύγχρονα αιτήματα της λειτουργικότητας, της οικονομίας και της αφαι­ρετικής μορφής. Δημιούργησε μια βασιλική με μεγάλο τρούλο, διαμέτρου 11 μ., το ύψος του οποίου όμως στην πράξη μειώθηκε κατά 5 μ. Παρά τη μείωση του ύψους και τον μεταγενέστερο παράταιρο διάκοσμο  με πολυελαίους και άλλα, το εσωτερικό του Αποστόλου Παύλου αποτελεί την ωριμότερη ναοδομική δημιουργία του Ζάχου. Η μεγαλοπρέπεια του εσωτερικού χώρου, ο υποβλητικός φωτισμός και η εξαϋλωμένη πλαστικότητά του παραπέ­μπουν σε λατρευτικά μνημεία του Βυζαντίου και ειδικότερα στη νέα Αγία Ειρήνη της Κωνσταντινούπολης (740 μ.Χ.). Στο εξωτερικό του ναού ο Ζάχος υπήρξε ακόμη πιο τολμηρός, καινοτομώντας στο πνεύμα ενός μετριοπαθούς μοντερνισμού. Αυτό φανερώνουν η αφαιρετική διαμόρφωση των επιχρισμένων επιφανειών και αρχιτεκτονικών λεπτομερειών, η γεωμε­τρική σαφήνεια και πλαστικότητα και όγκων, τα ορθογωνισμένα ανοίγματα και κυρίως η δυναμική σύν­θεση του ναού με τον υψιτενή πύργο του κωδωνοστασίου μέσω της ανατολικής τοξωτής στοάς. Εκτός από τον εκσυγχρονισμό των παρεκκλησίων και την εξασφάλιση ανέσεων για τους λειτουργούς του ναού (χώροι υγιεινής, γραφεία, αποθήκες κ.ά.), ο Ζάχος μερίμνησε για την αναψυχή των πιστών και επισκε­πτών, οργανώνοντας με έμπνευση τον περιβάλλοντα χώρο του ναού.

Δυστυχώς οι ναοί του Αριστοτέλη Ζάχου δεν έχουν χαρακτηριστεί ως νεώτερα μνημεία. Η πληθώρα των «εξωραϊστικών» έργων που πραγματοποιήθηκαν στις δύο κυρίως εκκλησίες του Βόλου —τον Άγιο Νικόλαο και τον Άγιο Κωνσταντίνο— έχουν ζημιώσει την αισθητική τους αξία.

Επίλογος

Συνδυάζοντας την παιδεία ενός Ευρωπαίου αρχιτέκτονα της εποχής του με την αυτογνωσία, ο Αριστοτέλης Ζάχος έκανε πράξη το απόφθεγμα του λυρικού ποιητή Πίνδαρου «γένοι‘, οος σσ μαθών». Υπηρέτησε με γνώση και πάθος τη νεοελληνική αρχιτεκτονική χαρίζοντάς της αξιόλογα μνημεία συμφιλίωσης του εκσυγχρονισμού με την παράδοση. Η υποτίμηση της νεωτερικής και μεταρρυθμιστικής διάστασης του έργου του οφείλεται σε δύο παρεξηγήσεις. Η σοβαρότερη είναι ο αδόκιμος χαρακτηρισμός του Ζάχου ως «βυζαντινολόγου» ή «νεο-βυζαντινού» αρχιτέκτονα, πράγμα το οποίο μείωσε το ενδιαφέρον των νεότερων ιστορικών και κριτικών για το έργο του.  Παρεξήγηση όμως υπήρξε και από πλευράς των μιμητών του Ζάχου. Ο μεταρρύθμισή του δεν ήταν ούτε μπορούσε να είναι κλειδί που ανοίγει όλες τις πόρτες. Η λαϊκή παράδοση και η κληρονομιά του Βυζαντίου ως πηγές έμπνευσης των σύγχρονων αρχιτεκτόνων όταν δικαιώθηκαν αυτό συνέβη σε παραδοσιακά θέματα, όπως είναι η μονοκατοικία, η εκκλησιαστική αρχιτεκτονική, η αρχιτεκτονική τοπίου και η συντήρηση μνημείων των μέσων και νεότερων χρόνων. Δεν προσφέρονται προφανώς για την αντιμετώπιση νέων θεμάτων όπως είναι τα αεροδρόμια, οι πολυκατοικίες, τα βιομηχανικά κτίρια κ.ά.  Επιπλέον, σε αντίθεση με τους μιμητές του, ο αρχιτέκτων δεν εναντιώθηκε, όπως είδαμε, στο μοντερνισμό της δεκαετίας του 1930.

 

Ελένη Φεσσά-Εμμανουήλ

Ιστορικός Αρχιτεκτονικής, Ομότιμη Καθηγήτρια του Πανεπιστημίου Αθηνών